畳屋さんが採寸にきました
これで正面はバッチリです
工程はこれまでの繰り返しになります。
・寸法を測って
・材料を切り出し
・調整をくりかえす
ザックリしているようですが、この手順の繰り返しで色々なものが作れちゃうのです。毎回取材に来てくれるホーリーは「これで理論上は僕も壁が作れるわけですね」と息巻いていました(笑)。
そうそう、畳屋さんが来たんでした。
すこし前置きが長くなってしまいました。ひと段落したところで今回は、寝室に入れる麻畳の採寸レポートです。
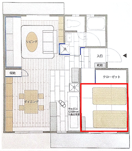
ここが寝室になります
4畳半の寝室には、麻畳をこう詰めることに。
ベッドの向きと揃えて、1畳の麻畳をいれてもらいます。教科書通りの配置ですが、数多くの人がこうするのには理由があるんですね。DIYをしていると突飛なことをやりたくなりますが、無難もやっぱり大切です。
麻畳が到着するのは2週間後
つまり、この部屋を大掛かりにイジれるのはそれまでということ... この寝室のDIYプランとしては「木部を全体的に白く」ということを考えています。畳が入ってからでも作業できますが、養生が面倒になるので避けたいところです。
というわけで
次回は友人を呼んで、この部屋の塗装作業をやっていきます!




