アーカイブの記事一覧
- DIY(ミニ)
契約プランと、頼れる現地案内所のおはなし
どうも皆さんこんにちは。最近、家族や友人、お会いする団地の方から「DIY住宅なんでしょ? 自力で改装するんでしょ?」とよく聞かれるホーリーです。それはちょっとちがうので、今回はホーリーのDIY(ミニ)の契約内容についてちょっと触れていきます。
という分担をしていますが、ホーリーは千里青山台団地の普通の一室に住んでいます。DIY住宅プランで契約しているのは、トーリーだけなんですね。
だから「模様替え住宅」とかでもないです。(そういうプランはありません!) いたって普通の賃貸契約なので、契約ステップもDIY住宅に比べかなりシンプルでした。
入居までの流れ
⒈希望の物件を探す
⒉仮申し込み
⒊住宅の内覧
⒋書類の提出
⒌契約完了
これを淡々とこなすだけでOK!
掃除のおばちゃんと肩を並べて情報通なのが、各団地の事務所の方々です。大型の団地はローカルルールがあったりして、戸惑うことがあるかもしれません。「はじめて住むのに気をつけることってありますか?」なんて声をかけてみれば、意外な情報をゲットできるかも。
千里青山台団地って、家電製品の三種の神器(テレビ、冷蔵庫、洗濯機)が普及し始めた頃の建物ですから、洗濯機を置くスペースが想定されていない住戸もあるんですよ。しかし 「あまりカッコよくはないな」と思っても、いくら便利でもホイホイ買うわけにいきません。模様替えポイント1つゲット。
UR都市機構の管理する団地には、ほとんどの場所に1つはあります。居住に興味がある方や、すでにお住いで悩みのある方も、ぜひご利用ください。
中央集会場(C-42棟)と、第2集会場(C-74棟)です。少し距離の開いた2会場になっていますので、電車でご来場の方には以下のルートがオススメです。
DIYの模様替え企画を進行中の身としては、やはり74棟で行われる電動工具体験会が気になるところです。用途や必要十分を覚えて、ちゃんと自分にあったDIYをできるようになりたい! 最近インターネットや本で頭デッカチになりつつあるので、ここいらで身体を動かしておきたいホーリーでした。
3月1日(日)は、ぜひ一緒にドリルを回しましょう。
模様替え申請を利用してDIY(ミニ)をやるホーリー
DIY(フル)でお部屋の大改造を担当するトーリー
という分担をしていますが、ホーリーは千里青山台団地の普通の一室に住んでいます。DIY住宅プランで契約しているのは、トーリーだけなんですね。
壁を壊したら怒られてしまうタイプの通常契約
だから「模様替え住宅」とかでもないです。(そういうプランはありません!) いたって普通の賃貸契約なので、契約ステップもDIY住宅に比べかなりシンプルでした。
入居までの流れ
⒈希望の物件を探す
⒉仮申し込み
⒊住宅の内覧
⒋書類の提出
⒌契約完了
これを淡々とこなすだけでOK!
転居先の事務所で 鍵や住まいのしおりを受け取る
掃除のおばちゃんと肩を並べて情報通なのが、各団地の事務所の方々です。大型の団地はローカルルールがあったりして、戸惑うことがあるかもしれません。「はじめて住むのに気をつけることってありますか?」なんて声をかけてみれば、意外な情報をゲットできるかも。
ちなみにホーリーはこれを薦められました
千里青山台団地って、家電製品の三種の神器(テレビ、冷蔵庫、洗濯機)が普及し始めた頃の建物ですから、洗濯機を置くスペースが想定されていない住戸もあるんですよ。しかし 「あまりカッコよくはないな」と思っても、いくら便利でもホイホイ買うわけにいきません。模様替えポイント1つゲット。
頼れる現地の案内所
UR都市機構の管理する団地には、ほとんどの場所に1つはあります。居住に興味がある方や、すでにお住いで悩みのある方も、ぜひご利用ください。
そんな現地案内所(の上で)DIYイベントが開催されます!
UR-DIYキャラバンツアー in千里青山台
~千里青山台団地でもいよいよフルDIY住宅の募集開始~
「団地をDIYして暮らします。」ブログでもご紹介している、URのDIY(フル)千里青山台団地でも募集開始されます。これを記念してイベントをしますので、ぜひご参加ください。
日時: 2015年3月1日(日)11:00~16:00
場所: 千里青山台団地(大阪府吹田市)
~千里青山台団地でもいよいよフルDIY住宅の募集開始~
「団地をDIYして暮らします。」ブログでもご紹介している、URのDIY(フル)千里青山台団地でも募集開始されます。これを記念してイベントをしますので、ぜひご参加ください。
日時: 2015年3月1日(日)11:00~16:00
場所: 千里青山台団地(大阪府吹田市)
中央集会場(C-42棟)と、第2集会場(C-74棟)です。少し距離の開いた2会場になっていますので、電車でご来場の方には以下のルートがオススメです。
最寄駅の「北千里駅」から74棟でひと参加
↓
千里青山台団地の景観を楽しみつつ、42棟へ
↓
フリーマーケットやワークショップを満喫
↓
帰りにウォールアート会場の変化を体感
↓
満足して帰宅の路へ
↓
千里青山台団地の景観を楽しみつつ、42棟へ
↓
フリーマーケットやワークショップを満喫
↓
帰りにウォールアート会場の変化を体感
↓
満足して帰宅の路へ
DIYの模様替え企画を進行中の身としては、やはり74棟で行われる電動工具体験会が気になるところです。用途や必要十分を覚えて、ちゃんと自分にあったDIYをできるようになりたい! 最近インターネットや本で頭デッカチになりつつあるので、ここいらで身体を動かしておきたいホーリーでした。3月1日(日)は、ぜひ一緒にドリルを回しましょう。
- DIY(フル)
URのDIY住宅に入居するには! ~契約に密着~
どうも、皆さんこんにちは。団地DIY住まいのレポートへの反響に、とても人気のジャンルなんだと再認識したホーリーです。たくさんのイイネ! ありがとうございます。というわけで、今回のレポートはその契約編。UR都市機構のDIY住宅へ入居するにはどうしたらいいの!? DIY(フル)を行うトーリーが契約する過程と織り交ぜながらご紹介していきます!
UR都市機構の管理する物件に入居するためには、ザックリ以下のステップを踏む必要があります。
⒈DIY住宅を探して申し込む
⒉住宅の内覧にいく
⒊契約を結ぶ
⒋DIYのプランニング
⒌計画の申請・承諾
⒍DIYの施工開始
⒎入居
ステップ1 DIY住戸を探して申し込む
とりあえず検索
たくさん検索されているようで、"もしかして"が結構な数でてきます。UR都市機構のDIY部にDIYキャラバン...? いったい何者なんだ... これについてはまたいづれ。
2015.02.13(金)現在
「UR都市機構のDIY住宅」というところをクリックすれば、このブログで何度か載っけましたページに入ることができます。ページの下をみると物件情報があるので、希望の地域にある物件をクリック!
ステップ2 住戸の内覧に行く
DIY住宅を見つけて申し込みをしたら、物件の内覧です。ザックリとDIYのプランを描いておいて、質問したり手当たり次第にメジャーで測ったりしちゃいましょう。写真はDIY(フル)のトーリーの内覧の様子です。
お気に入りの道具があるとテンションも上がります
・希望しているDIYはできそうかな?
・今ある家具、家電は気持ちよく置けるかな?
・隣近所の環境はどんな感じかな?
などなど、現地へ行って見て聞いてみないとわからないことが山ほどあります。最悪なのは「契約してからDIYをやろうとしたら無理だった!」というやつなので、気合をいれて内覧に臨みましょう。
ステップ3 契約を結ぶ
内覧して質問もして、URさんのルールと自分の希望がマッチしたら、いよいよ契約。賃貸契約に必要な書類を準備して、不備がなければ30分程度で完了します。
婚約届なる未知の書類
大概の物件ではそうですけど、赤の他人と勝手に暮らすことは好まれません。このときトーリーまだ入籍してなかった! ので、この書面が登場しました。その半月後にご入籍されたので、結果的にはいらなくなったんですけどね。
(ホーリー、このとき初めてお二人のご関係を把握しました。サプラ〜イズ)。
ステップ4 DIYのプランニング
DIY(フル)トーリーのプラン
小さな改装から大規模な工作も含め、丁寧に打ち合わせをして決めていきます。新居を直接見ながらだったり、メールやUR営業所での打ち合わせだったり。まるで新築の一戸建てを買うような気分に。
希望を伝えれば色々な案が返ってくるので、難しいことはありません。その中から選んだり、新しくひらめいたことをガンガン伝えちゃいましょう。ステップ5 計画の申請・承諾
申請と承諾といっても、これまで一緒にプランを練っているのでこれも簡単です。双方の意見が合致したという最終確認ですね。ただ、心変わりしたらその都度申請しないといけないので、よ〜くよ〜く練り上げてください。ステップ6 DIYの施工開始
・賃貸契約をちゃんとした・DIY申請も許可が出た
もうこれだけで手続きは終了です。あとは思う存分、団地DIYライフを満喫するのみ! 楽しみに集めた工具を持ち込み、付箋だらけの雑誌とにらめっこしながら自分だけの空間をつくり上げましょう。
情け容赦ない全力DIYがはじまります
契約も済んだし、次のトーリー回ではいよいよ内装をDIYで改造していきます。新婚ホヤホヤ、幸せいっぱいなトーリーの愛の巣づくりにご期待ください!
- DIY(ミニ)
DIY(フル)とDIY(ミニ)何が違うの?
今回はホーリーが活用するDIY(ミニ)の「模様替え申請」について解説していきます。
このあいだご紹介したトーリーのDIY(フル)プランとは異なる、「願出・届出」を利用した申請作業。なにがどう違うの? と聞かれれば、最大の違いは「増改築・共用部分の模様替え・間仕切りの変更等は認められない」
(壁こわしたり、外装をいじったりしたら許しませんよ...? 的な)
という点。コレがもっとも違うんじゃないかなと思います。だからトーリー邸みたいにゼロから改装! ということはできません。
詳しくは入居者に配られる「住まいのしおりP29」参照
(Webでもみられます「UR 住まいのしおり」はこちら)
(Webでもみられます「UR 住まいのしおり」はこちら)
いろいろと決まりとか規則が書かれているんですが、ここにはザックリと 建築・機械・電気 の3種類、細分化して66個の模様替え項目が載っています。
こんな感じに66項目
たとえば
・畳のフローリング化
・壁の塗装、壁紙の張り替え
・間仕切り、中鴨居の撤去
・コンセント、テレビ端子の増設
・その他、約50項目
などが「申請→審査→承認」というかたちで受理され、模様替えのGOサインで様々な模様替えができちゃいます。URさんとして細かい規則はあるようですが、それを守れば、実際はとても自由にできてしまうようです。たとえば「和室を洋室にしたい」という要望には100%応えられるのではないでしょうか?
申請を出せば、入居後いつでも模様替えが可能!
トーリーの入っているDIY(フル)との違いがもうひとつありました。この模様替え申請は全ての入居者が誰でも出せて、誰でも行うことができるのです。入居後に気になってきた箇所に手を入れられるというのは、嬉しいひとがたくさんいると思います。
さてどうしたもんか...
じつはホーリーのDIY(ミニ)は、企画開始から2ヶ月が過ぎようとしているのにノープラン。色々なブログや本を読みあさっていますが、目移りばかりしてしまいます。トーリーのDIY(フル)が本格的に始まるまでには形を決めたい! 同じペースで作業したい!
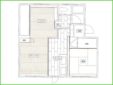
ちなみに団地DIYモニターをする部屋の間取りはこちら
トーリーのDIY(フル)とホーリーのDIY(ミニ)は、反転しているだけのほぼ同じ間取り
そこそこ安くて駅チカで、治安のいい場所ならどこでも満足だったこれまでの暮らし。いざ理想の部屋は?と聞かれて、かなり戸惑っているホーリーでした。
- DIY(フル)
神戸落合団地のプラン
皆様こんにちは。今回は新たなる仲間、DIY(フル)を手がけるトーリーの団地DIYプランについて、詳しく紹介していこうと思います。
あらためて、UR団地のDIY住宅って?
1.施工期間を含む、3ヶ月相当の家賃が無料!
2.このプランの住戸で契約していれば、入居後でもDIY可能!
3.DIYのあと、退去時の原状回復義務が免除!
4.URの団地で許される、最大限の改装をすることができる!
という、特に団地の内装に煮え切らないものを感じている方むけのプラン。立地や家賃が気に入っても、肝心の設備に満足できないのでは残念です。だったら自分の好みに変えてしまいましょうよ! ということでこのDIY住宅プランに沿って、トーリー夫妻は3月の入居を目指して住宅を改装中です。その気になる間取りがコチラ。
青のラインが増改築をする部分
壁の位置を変更したり、家具・家電の配置が書き込まれています。「構造部分に傷をつけなければ、壁を壊してもいい」というお話をもとに、URさんと相談してつくってあるんだそうです。
比較(左:現状/右:DIY予定)
和室2つをつなげて、ひとつのリビング・ダイニングにしてしまおうということです。仕切りが取り払われ、大きな一室になっているのがわかりますね。開放感!
相談にのってもらえるから、ド素人でも安心。
知り合いの工務店さんなどがあればそちらにお願いもできますが、URさんに改装の相談をすると紹介してもらえるのが「日本総合住生活(株)(通称「JS」)」さん。長きにわたり団地の住棟を管理してきたプロ集団なので、アドバイスつきで丁寧に対応してくれます。
「キッチンはまるごと無印良品のものに変えたいんですけど...」
「DIYで部屋を壊してつくり直す」なんて聞いたときには「いやいや素人には無理でしょ... トーリーは工務店勤めだからできるかもしれないけどさ」なんて思っていましたが、一人じゃ無理なことでも友達に手伝ってもらったり、プロに依頼したり、いろんな楽しみ方があるのがDIYなんですね!




