MUJI×UR 団地リノベーションプロジェクト
トークイベント「千里ニュータウンと団地の魅力」
※このレポートは、2016年2月6日に新千里東町団地集会所で行われたトークイベントの模様を採録しています。
- 門脇
-
みなさんこんにちは、門脇です。僕は明治大学で建築について教えています。太田さんは地元の方ですが、僕は大阪のことをほとんど知らないので、団地の成り立ち全般について話そうと思います。
先ほど新千里東町団地を歩いたのですが、素晴らしかったです。団地の設計思想には、ヒューマニズムに基づく方向性と、テクノユートピア的な未来都市を志向する方向性という2軸が認められますが、新千里東町は、どちらかといえばヒューマニズム的側面が強く、中庭や人間的な空間がたくさんありました。
さて、団地の成り立ちについて話をしますが、ここでは同時に都市の発展についても触れていきます。
団地は近代という時代を代表する住宅の形式と言うことができますが、近代という時代は、民主主義と産業が工業化することを条件として成立します。日本の近代化は明治期に本格化し、おおむね1970年ごろに完成します。つまり、大阪万博の頃に日本の近代化は完成するわけですが、それ以降はポスト近代の時代だと考えて貰えば良いと思います。 -
近代以前の建物は、いわゆる土着建築と呼ばれるものが多くを占めていますが、そこには全体として統一感があるという特徴が認められます。近代以前は、機械が使えなかったり、手に入る材料が限られていたりしますので、建物の建設に強い制約がかかり、結果として建物の姿かたちが似てくるのですね。
同じようなことは、自然にも見られます。たとえばカナダの風景を思い浮かべてみると、風景がすっきりしていてきれいです。カナダのような場所は、自然の条件が厳しいので、生物多様性がありません。つまり生息できる生物が限られています。したがって風景に統一感が自然と生まれてくるのですが、これも土着建築と原理は一緒です。 -
ところが近代に入ると、都市と建築の姿が変わっていきます。第一に、技術が進歩し、材料もいろいろなものを遠くから運べるようになりますので、デザインが多様になる。第二に、工業化以降、産業は大規模な人口集積を必要とするようになりますから、都市に人が密集して住まうようになる。そうなると、当然住宅も変わる必要が出てきますが、高密な人口を格納する器として生まれたのが、集合住宅、つまりマンションに連なる建物の形式です。団地もそのひとつだということができます。しかし、人が高密に集まると環境が悪化します。したがって、高密さと良好な環境をいかに両立させるかが、集合住宅が抱える基本的な課題となるわけです。
近代化が始まったばかりのころは、やはり都市は不衛生でした。たとえばパリでは、高密な人口を格納する器としてアパルトマンが発達しますが、都市には下水が発達していなかったため汚物にあふれ、様々な病気が発生しました。外国の都市では、それをどのように乗り越えるのか、長い模索が進められます。
- 門脇
- 一方で、日本で集合住宅が誕生したのは比較的最近のことです。日本は江戸時代には長屋しかなくて、階段があって住宅が積み重なっている積層型の集合住宅はもともとありませんでした。初期の集合住宅としては、同潤会が建てたものが有名ですが、それも数としては全体で6,000戸程度しかありません。集合住宅が一般化するのは、もっと時代が下って、1955年以降。それには、日本住宅公団の誕生がひとつの契機となりました。
- 門脇
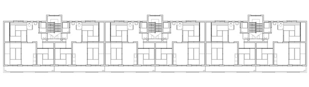
- 最初のころにつくられたのは、羊羹型の中層集合住宅が並ぶ団地です。容積率は70〜80%程度で、戸建住宅地の密度より少し高い程度のものでした。
- 門脇
-
この頃の団地では、2つの住宅が向かい合って、一つの階段室をシェアしています。お風呂に窓が必ずあったのも特徴です。お風呂は湿気が出るので、その湿気を換気する必要がありましたが、当時は機械換気の技術がなかったので、窓を開けて自然の風で乾燥させていました。
エアコンも勿論ありませんでした。日本では、北と南を開けると風が抜けるので、北側の部屋にも大きな窓をつけていました。ただし、そうなるとプライバシーを守る必要があるので、現在のマンションのように北側に廊下はつけられません。だから廊下型ではなく、階段室型の集合住宅が発達したわけですが、当時はエレベーターもありませんでしたので、人力で登れる範囲ということで5階建の住棟ができていきました。 -
団地は、最初は人気を博し、入居のための抽選はたいへんな倍率でした。しかし10年程度で、団地はすごく嫌われることになります。当時のサブカルチャー表現にもその様子を見てとることができますが、たとえば子ども番組で団地を怪獣が破壊するような場面が出てきたり、「団地妻シリーズ」などの団地を舞台としたポルノが登場したりと、団地が非人間的なものとして描写されるのです。団地では、同じ住宅が繰り返し反復されますが、そのことの気味悪さがこうした描写につながったのでしょう。
それから、団地をつくると学校や病院など、様々な施設が付帯して必要になります。それは自治体がつくるものですので、団地開発が自治体の財政を圧迫することも問題となりました。
一方で、1970年代後半頃になると、高層の集合住宅団地が登場してきます。こうした団地の容積率は200〜300%で、かつての3倍くらいの密度で住宅が建てられるようになりました。 - こうした高層住宅は、第一に設備技術が発達したため成立したものです。窓が必要だったお風呂も機械で換気ができるようになり、たくさんの住宅を詰め込むことができるようになったのです。住宅が高層化するとエレベーターも必要になりますが、しかしエレベーターはメンテナンスの費用が高いので、一つのエレベーターでたくさんの住戸へとアクセスできる形式ということで、廊下型の集合住宅が一般的になっていきます。
- 門脇
-
こうした変化によって、住宅も姿を変えていきます。北側に廊下ができ、防犯のため窓には鉄格子がつけられ、より非人間的なものになっていきます。
ところが団地は進化をやめません。90年後半には超高層マンションが建ち始めます。超高層マンションの容積率は400〜500%。こうしたマンションでは、よりたくさんの住宅を詰め込むため、北向きの住宅も普通になります。密度を上げれば上げるほど、住宅は自然環境から切り離されていくのです。 - ところが、そこでは住まうことに対する価値観の転換も同時に起こります。たとえば超高層マンションでは、住宅が南を向いていることより、羨望が良いことの方が価値があるとされるようになったりします。
- この価値観の転換を積極的に捉えている例として、東雲キャナルコートCODANを挙げることができるでしょう。超高層ではなく、高層住宅ですが、容積率は400%もあります。しかし、中庭状の人工地盤の下はショッピングモールのようになっていて、採光が不要な店舗を入れて容積をかせぐとともに、商業と近い暮らしを実現しています。住宅自体も中廊下型といわれる形式を採用しているため、中廊下に面する部分は採光がとれませんが、中廊下に面する部分をガラス戸にして、その場所を働く場としても活用できるようにしている。これも採光が十分にとれないことに対する工夫であるといえるでしょうが、それを逆手にとって、住まうことと働くことが近接する、新しい住まいの価値を提供しました。