MUJI×UR 団地リノベーションプロジェクト
団地リノベーション完成 ここだけの話 2015
※このレポートは、2015年1月8日に3*3Laboで行われた、パネルディスカッション式のトークイベントを採録しています。
- 増重
- 品川八潮パークタウン
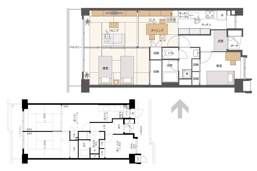
続きまして、品川八潮パークタウンをご紹介します。
りんかい線の品川シーサイド駅と、羽田空港に向かいますモノレール大井競馬場前駅の間の辺り、運河を挟んで海側・東側にあります。 品川八潮パークタウン全体は、住宅供給公社さんが管理されている住宅もある大規模な団地でして、UR賃貸の団地も3つありますが、今回、MUJI×UR団地リノベーションプロジェクトの対象になりますのは、モノレール大井競馬場前駅から徒歩約8分のところにあります「潮路南第一ハイツ」530戸の団地となります。
モノレール以外にも、品川・大井町・大森へ向かうバスの路線が多数あり、空港に行くにも、新幹線に乗るのも近くて便利、というのは大変魅力的です。モノレール大井競馬場前駅からの品川八潮パークタウンの遠景はこのような感じでして、運河に面しています。
- 増重
- 昭和50年代後半に埋立地の上に開発された大規模な団地です。先ほどの国立富士見台団地は5階建でしたが、品川八潮は最高14階建の高層建築となっています。
そして、緑が多く、大規模な公園にも隣接しています。団地全体の規模は大きいのですが、賃貸以外の分譲物件や、公社住宅などとも建物のデザインがある程度揃っていますので、遠くから見ると景観が整っている様子がうかがえます。
品川八潮パークタウンでは、今回2タイプご用意いたしましたが、こちらMUJI×UR Plan13は、もと3DK約64m²のお部屋をリノベーションしたものでございます。
- 増重
- プランの特徴ですが、もともとあった流し台とその裏の間仕切の壁を撤去しまして、2列のキッチンをダイニングの中央に配置しました。また、南側洋室とダイニングの間にあった建具を取り払いました。


- 増重
- 北側のお部屋のふすまを取り払っていただきますと、キッチンを中心にした暮らしの空間が広がります。北側と南側の両方から光を取り入れることも可能です。
床の仕上げはクールで清潔感のある白いシート貼りとなっています。また、このプランの「テーブル」と「スツール」も、暮らし方に合わせて自由に動かすことができます。
品川八潮パークタウンのように昭和50年代末の団地になりますと、住宅の内部が面積が増えまして、他の団地などと比べますと、20m²ほど広くなっておりますので、お子さんのいらっしゃるファミリー層の方にもお住まいいただけるようゆったりとしたつくりとしました。
- 増重
- LDK以外にお部屋が2つありまして、こちらの北側のお部屋はふすまでキッチンと仕切られていて、様々な用途にご活用いただける部屋となっています。 もうひとつのお部屋は、麻畳を敷いた独立性の高い落着きのあるお部屋となっています。
こちらMUJI×UR Plan 014タイプは、もと3DK約65m²のお部屋をリノベーションしたものです。
- 増重
- プランの特徴ですが、台所、流し台の位置はあまり変えてないのですが、もともと板の間だったダイニングに麻畳を敷詰め、リビングとの一体感をもたせるようにしました。
敷居、欄間と建具の木の枠は、麻畳やダンボールふすまとの調和を考えて、あえて白く塗装せずに木の色を残しています。
- 増重
- ふすまを取り払った状態の写真ですが、合計18畳の広々とした空間が広がります。
近頃のリノベーションでは、畳の仕上げを減らすのがトレンドではありますが、今回、逆に畳の空間を増やす、という大胆な取り組みにチャレンジしまして、果たしてうまくいっているかどうか? ご興味のある方はぜひモデルルームをご覧頂き、お確かめ頂ければと思います。
こちらのMUJI×UR Plan 014も、先ほどのMUJI×UR Plan 013と同様に、LDK以外のお部屋が2つございます。
- 増重
- 南側のお部屋、主寝室で7.5畳の広さがあるのは、都心に近い物件としましては大変貴重です。麻畳仕上げですと、ベッドをそのまま置いても、このように違和感はありません。
北側のお部屋は、窓が廊下に面したよくあるお部屋なのですが、床や壁は全て白で仕上げていますので、暗い感じがしません。
- 増重
- キッチンまわりのつくり方がMUJI×UR Plan 013とMUJI×UR Plan 014タイプでは全く異なっておりまして、MUJI×UR Plan 013タイプは、「暮らしの中心に大きなキッチン」のテーマ通りですが、一方のMUJI×UR Plan 014タイプは、独立性の高い調理空間となっております。


- 増重
- 水まわりは、基本はシンプルな感じとなっております。品川八潮パークタウンには、近くの清掃工場の発生熱を活用した地域熱供給というシステムがあり、各住宅に温水を供給していますので、LDK以外のお部屋には「暖房放熱器」というヒーターを設置しています。
「ここだけの話」と銘打っていますので、普段あまり披露できないようなお話もさせていただければと思います。
MUJI×URの全てのプロジェクトのポイントなのですが、壁の仕上げは艶消しの白い水性の塗装仕上げとなっております。壁のリフォームの方法としましては、壁紙を貼り替えるというやり方が住宅では最もポピュラーでして、工事費が比較的安い、職人さんが多い、デザインは選び放題とメリットは多いのですが、MUJI×URでは、もとの壁を壁紙で覆い隠すのは、「つくりすぎず、こわしすぎない」というコンセプトに合わないこととされており、壁紙は今のところNGとなっています。ただ、壁紙をはがした跡に壁紙を貼り直すのではなくペンキを塗ることが実は結構難しいよねと、現場でいろいろと試行錯誤している状況がこちらの写真です。


- 増重
- 最近は大変便利な製品もありまして、壁紙を剥がさずに上から塗る「エコ塗料」なるものがあります。これは、塗料に厚みがあるため、単に壁紙の上に色を付けるだけでなく、仕上げると、塗装の下に壁紙があるとはとても見えないような具合になるということで、壁紙を剥がす手間は省ける、ゴミが減るとか、このエコ塗料の材料が珪藻土という自然素材なので環境にも優しい、とかこれまた良いことづくめだったのですが、実際に施工してみると、木の枠や天井はエコ塗料が使えないので通常の水性塗料を塗った部分と色が合わない部分が出て来てしまいました。写真だとちょっとわかりづらいのですが、少し黄色いんですね。
- 増重
- MUJI×UR以外の住宅でしたら、これはこれでニーズがあるのですが、MUJI×URでは、水まわりのキッチンや洗面器など全て白ですので、白のトーンが合わないと、全体の見た目がやはり劣ってしまいます。また、素材の関係から予め決まった色しかないので、普通のペンキのように色の調整ができない、というのが難点でしたので、こちらのエコ塗料、残念ながら採用には至りませんでした。


- 増重
- 先ほど、壁紙を剥がした後の塗装が難しい、とちょっと申し上げましたが、壁紙を剥がした状態が、左側の写真です。壁紙の裏についている薄い紙が壁の方にくっついています。この薄い紙を完璧に取り除くのは、大変手間がかかるのと、塗装した後、オフィスの室内の壁のようにのっぺりとした出来栄えになってしまいますので、「つくりすぎず、こわしすぎない」ざっくりとした味わいを出すために、こうした薄紙の上から注意深く塗装を行っています。この辺りの工事の「さじ加減」が、職人さんにも求められるプロジェクトです。
- 増重
- 壁の次に、建具の関係についてお話したいと思いますが、MUJI×URプロジェクトの団地は、昔ながらの「ふすま」を使っている場所が多いのですが、まず、ふすまを取り払う場所と、ふすまを残すところを、慎重に決めます。その上で、ふすまを残した方がよい場所、ふすまが必要な場所にはダンボールふすまを入れていますが、ダンボールふすまも、普通のふすまと同様に、光を遮るので、照明を付けない限り真っ暗になってしまう部屋が出てきてしまうことは、どうしても避けられませんでした。
一方で、日本古来の住宅の建具には障子がありまして、こちらは光を通すところは優れているのですが、どうしても古典的な見た目になってしまいますので、お部屋が今風には見えません。また、ふすまと比べ一枚あたりお値段が結構高いという点もあります。そこで、無印良品・メーカーさん・URとで、光を通すふすまを開発することになりました。それが「半透明ふすま」です。


- 増重
- ふすまのフレームはアルミですが、光を通したときに、うっすらとシルエットが透ける程度、ちょうど障子紙と同じくらいの透過性のある建具になりました。また、表面が樹脂ですので、水や湿気に強い、水拭きで掃除ができる、といったメリットもあります。今後は、暗くなりがちな廊下の出入口などに活用していきたいと考えております。
- 川内
- ありがとうございました。半透明のふすまは興味深いですね。では次の団地について、説明よろしくお願いします。