MUJI×UR 団地リノベーションプロジェクト
団地リノベーション完成 ここだけの話 2015
※このレポートは、2015年1月8日に3*3Laboで行われた、パネルディスカッション式のトークイベントを採録しています。
- 豊田
- そして昨年度プランをご紹介します。
- 豊田
- MUJI×UR Plan08です。
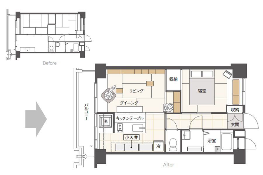
東京の高島平団地で46.24平米です。間取りを自由に変えられるプランです。ふすまの仕切り方次第で、広々としたLDKにすることも、書斎のある大きな寝室にすることもできます。このプランの洗濯機の位置は2種類あり、洗面所の場合とキッチンの背面の場合があります。
- 豊田
- MUJI×UR Plan09です。
効率的な家事ができる部屋。
理想の住まい方アンケートで、室内にサンルームを設置。好評を得たのでプランに活かして提案。非常に評判がよく、高島平団地では7.1倍となり、こういった考え方が受け入れられたのかなと感じています。
- 川内
- ありがとうございました。それではここから、各団地の紹介に入っていこうと思います。エリアが広がっているだけでなく、様々な試みも進んでいますので、ぜひお聞きください。
- 増重
- 本日はよろしくお願いいたします。先に、URの簡単なご紹介をさせていただきます。UR都市機構の前身は、1955年にできた「日本住宅公団」という組織でした。今年で設立60周年を迎えます。これまで、分譲も含めて約150万戸の住宅をつくり、現在も賃貸住宅として四大都市圏を中心に約75万戸の住宅を管理しています。
ただ、高齢化が進んでおりますので、今後は子育て世帯へ支援の充実、医療福祉施設の充実など、多様な世代の方ができるだけ団地に長く住んでいただくためのまちづくりを、自治会や自治体などと連携して実施しています。そして、無印良品とのプロジェクトを通じて、特に若い世代への訴求を図っております。
さて、本題に入ります。今回首都圏で着手した4団地について、各担当から説明差し上げます。まずは国立富士見台団地からご紹介します。
国立富士見台団地
中央線国立駅からバス、あるいは南武線の最寄駅から歩いて10分ほどです。国立富士見台団地全体としては、約2000戸ほどございますが、団地が3つに分かれているのが特徴です。今回は、JR南武線矢川駅が最寄りになっている第3団地が対象となっております。
外観は5階建て、典型的な団地の雰囲気を残しています。団地ができてから50年近くたちますので、建物周辺の空間がゆったりしております。季節の移り変わりも感じることができます。
今回は2タイプ用意しました。まずMUJI×UR Plan06。もと3DKです。
- 増重
- 以前お茶の間だった場所が、キッチン・ダイニングが一体の広々とした空間になりました。
流し台とセットでお貸しします「テーブル」と「スツール」は可動式ですので、テーブルの向きを変えたりすることが可能です。
- 増重
- 畳の部屋に麻畳を使いましたので、温かい雰囲気となりました。
- 増重
- 北側リビングの窓が廊下に面しておりませんので、北側の窓と南側の窓の両方から、光と風を取り入れることができます。
国立富士見台団地のもう一つのタイプがこちらのMUJI×UR Plan07ですが、先ほどのMUJI×UR Plan06よりやや狭い、もとは3Kのお部屋のリノベーションとなります。
- 増重
- こちらも、流し台と洗濯機のレイアウトを大きく見直しました。もともとあった流し台とその裏にあった間仕切の壁を撤去しまして、リビング・ダイニングを広くしました。
- 増重
- このMUJI×UR Plan07の特徴としましては、キッチンが窓に面しているところです。大変明るい、風通しもいい空間となっております。また、このプランの「テーブル」と「スツール」も、暮らし方に合わせて自由に動かすことができます。
- 増重
- 寝室もシンプルながらも温かみのある感じとなっております。ダイニングとはダンボールふすまで仕切られておりまして、ふすまを開けてお部屋を開放的に使うこともできます。
以上、2つのプラン、もともとの間取りが似たような感じなのですが、住まいの印象を決める床材の種類を、廊下とDKについて国立富士見台ではMUJI×UR Plan06プランとMUJI×UR Plan07で変えておりまして、MUJI×UR Plan07の方は白シートを使いましてシャープでクールな印象、MUJI×UR Plan06の方は麦わらパネルを使いまして柔らかな感じ、となっておりますので、ぜひモデルルームで違いを感じてしていただければと思います。