性能向上リノベーション
「MUJI INFILL 0」を導入
1.新耐震
新耐震基準を満たした物件のみ施工します。
家そのものの頑丈さにも厳しく目を配り、耐震基準を満たした物件にのみリノベーションを行うよう徹底しています。
2.スケルトン
見えない部分が大切です。
見える部分だけが「住まい」ではありません。表面だけ新しくするのではなく、一度スケルトンの状態にして見えない部分も確認し、必要に応じて配線・配管、床壁天井の下地を新しくすることから施工をはじめます。
3.高断熱
全戸温熱計算で一家一家診断します。
現在の新築同等の断熱性能に向上させます。外に面する部分に断熱材、窓に複層ガラスインナーサッシを採用。全戸温熱計算を行い、住まいの快適さを数値で検証しています。
今回リノベーションしたお部屋は、東京都東久留米市にある滝山団地の一室。団地内に桜並木があり、お隣にある白山公園も桜の名所として地元で有名なスポットです。3階なので階段の登り降りはありますが、春にはお部屋でお花見もできるかもしれません。
このお部屋の真ん中には玄関から広がるホールがあります。ホールは土間とリノリウム床からなり、半透明の扉ですべての場所へ繋がった、まるで中庭のような存在。団地では玄関が狭くなりがちですが、玄関ホールを広く設けることで開放的な雰囲気を感じさせます。
ホール内にある洗面台は、洗面ボウルの左右に広々としたスペースを設けました。スキンケア用品やコスメを並べて身支度をしたり、アイロンがけをしたりもできそう。収納棚もしっかりとってあり、洗剤やボディソープなど水回りストック品も置いておけます。
キッチンは壁付けタイプ。吊戸やシンク上の可動棚を設置して、限られたスペースの中でもダイニングを広く使えるようにしています。足元にもラックやワゴンを置いて、収納をカスタマイズしてみてください。
ダイニングの隣にある部屋はそのままリビングとして使うのはもちろん、カーテンで仕切って個室として使うことも可能。デスクを置くスペースもあるのでリモートワーク用の書斎や、寝室、勉強机を置いて子ども部屋にもできそうです。
ホールの土間、リノリウム床、シナ天井、框戸の木枠、フローリングなど様々な素材を用いていますが、いずれも近い色味にすることで統一感を出しています。インテリア小物を置けるさりげない設えもあちらこちらに。暮らしの背景としてなじみながら、素材や場所ごとの個性も楽しめるおしゃれな空間になりました。
もちろん外壁面には断熱材を施工し、窓にはインナーサッシを設けているので温熱環境もしっかりと整ったお部屋になっています。
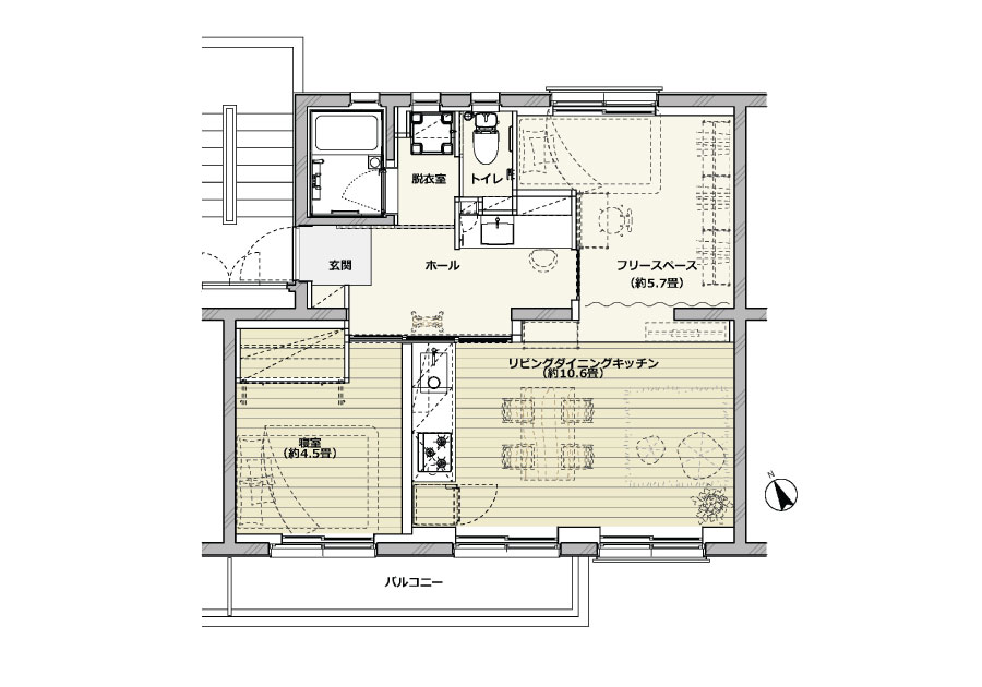
間取り

リビングダイニングキッチンとフリースペースの間には仕切りがないので、一体的な空間として使うことができます。床や天井の素材が切り替わっているので、緩やかにエリアを分けることもできそうです。

リビングダイニングキッチンとフリースペースをカーテンで仕切ることで、個室をもう1部屋作ることができます。書斎や子供部屋など住まう方に合わせてアレンジすることができます。
物件詳細
- 所在地
- 東京都東久留米市滝山
GoogleMapでみる - 交通
- 西武新宿線「花小金井」バス10分「滝山団地5丁目」徒歩2分
- 価格
- -
- 管理費
- -
- 修繕積立金
- -
- 面積
- 47.99㎡
- バルコニー
- 5.72㎡
- 構造
- 鉄筋コンクリート造
- 築年数
- 1969年
- 改築年
- 2023年
- 階層
- 5階建て3階部分
- 総戸数
- 40戸
情報登録日:2024/10/21 次回の更新予定日:-

