- 価格
- 成約済
- ローンの目安
- -
- 管理費
- -
- 修繕積立金
- -
※ローンの目安は、頭金ゼロ、借入期間35年間、都市銀行・変動金利(0.725%・優遇後)を想定しています。審査内容により、融資の一部、または全部をご利用いただけない場合がございます。予めご了承ください
性能向上リノベーション
「MUJI INFILL 0」を導入
1.新耐震
新耐震基準を満たした物件のみ施工します。
家そのものの頑丈さにも厳しく目を配り、耐震基準を満たした物件にのみリノベーションを行うよう徹底しています。
2.スケルトン
見えない部分が大切です。
見える部分だけが「住まい」ではありません。表面だけ新しくするのではなく、一度スケルトンの状態にして見えない部分も確認し、必要に応じて配線・配管、床壁天井の下地を新しくすることから施工をはじめます。
3.高断熱
全戸温熱計算で一家一家診断します。
現在の新築同等の断熱性能に向上させます。外に面する部分に断熱材、窓に複層ガラスインナーサッシを採用。全戸温熱計算を行い、住まいの快適さを数値で検証しています。
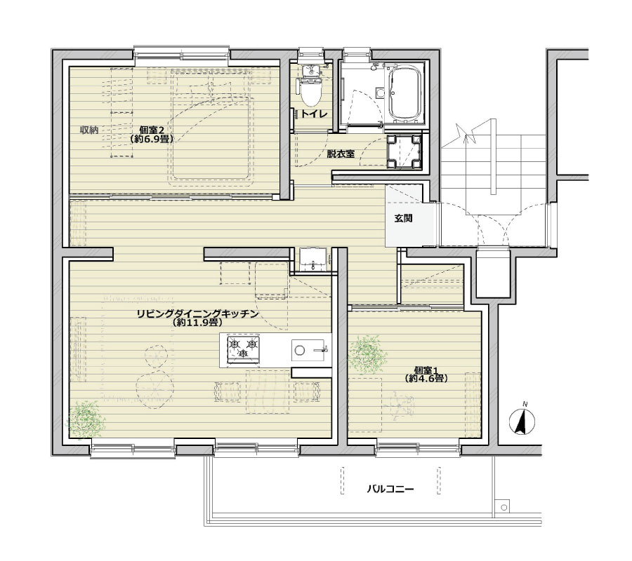
神奈川県横浜市にある竹山団地は、大きな人工池を囲むように作られた、保育園や小学校、スーパーもある大きな団地です。その中で今回リノベーションしたのは、4305棟の1階にあるお部屋。重い荷物がある日でもお部屋まで楽に運び入れられますね。1階ですが階段を数段上る少し高めの場所にあるため、外から室内が見えにくくなっています。
約12畳のリビングダイニングは、ダイニングテーブルを置いても広々。お部屋全体に敷いたMUJI×UR共同開発商品の「ラワン合板フローリング」を、壁にも貼ってアクセントにしました。
ダイニングの奥にあるキッチンは、壁付けだったものをペニンシュラタイプに変更。外の景色を見ながら料理や洗い物ができます。背面には稼働棚とシェルフがあり、収納力もバッチリです。キッチンと窓の間のちょっとしたスペースは、使い方いろいろ。デスクを置いて小さな書斎にしたり、棚を置いてキッズスペースにしたり……工夫次第で楽しみが広がりますね。
リビングダイニングの目の前には個室があり、引戸を開けて大きな一部屋にすることもできます。この個室自体も6.9畳と広めなので、家具で仕切って2部屋に分けても。そして玄関の左手にももうひとつ独立した個室があります。リビングダイニングに面した個室と、廊下を介した個室、それぞれ性格が異なるお部屋なので、使う人や用途に合わせて選んでみてください。
玄関の右手には脱衣所、浴室、トイレをまとめた水回りスペースを確保。浴室は一般的な団地よりも洗い場を少し広めに確保しているので、家族でのバスタイムを満喫しましょう。
廊下にある洗面台は生活感が出やすい場所ですが、ご心配なく。壁のへこみに埋め込むような形で設置しているため、玄関からもリビングダイニングからも直接は見えません。
広々としたバルコニーも地面からある程度の高さがあるので、洗濯物がしっかり干せそう。外に面した部分と床下には断熱材を、窓にはインナーサッシを採用し、温熱環境も確保しました。
間取り

壁式構造の変えられない壁を利用して、個室を設けています。 リビングに面した広めの個室は引戸を開けることで廊下も含めてリビングを延長した空間や、家具収納のあるゆったり寝室に。

キッチン前のちょっとした空間はデスクを置いてテレワークしたり、収納をおいてキッズスペースにしたりとフレキシブルに使えます。 広めの個室は家具で仕切ることで、コンパクトですが2部屋に分けて使うこともできます。
物件詳細
- 所在地
- 神奈川県横浜市緑区竹山4丁目
GoogleMapでみる - 交通
- 横浜線「鴨居」バス10分「竹山団地折返場」徒歩4分
- 価格
- -
- 管理費
- -
- 修繕積立金
- -
- 面積
- 53.17m²(公簿)
- バルコニー
- 不明
- 構造
- 鉄筋コンクリート造
- 築年数
- 1971年
- 改築年
- 2023年
- 階層
- 4階建て1階部分
- 総戸数
- 224戸
情報登録日:2024/11/25 次回の更新予定日:-
