- 価格
- 成約済
- ローンの目安
- -
- 管理費
- -
- 修繕積立金
- -
性能向上リノベーション
「MUJI INFILL 0」を導入
1.新耐震
新耐震基準を満たした物件のみ施工します。
家そのものの頑丈さにも厳しく目を配り、耐震基準を満たした物件にのみリノベーションを行うよう徹底しています。
2.スケルトン
見えない部分が大切です。
見える部分だけが「住まい」ではありません。表面だけ新しくするのではなく、一度スケルトンの状態にして見えない部分も確認し、必要に応じて配線・配管、床壁天井の下地を新しくすることから施工をはじめます。
3.高断熱
全戸温熱計算で一家一家診断します。
現在の新築同等の断熱性能に向上させます。外に面する部分に断熱材、窓に複層ガラスインナーサッシを採用。全戸温熱計算を行い、住まいの快適さを数値で検証しています。
セボン紅葉丘メープルタウンは外観と共用部がイエローやオレンジを基調とした南欧風のデザインで統一された、可愛らしいテラスハウスです。今回リノベーションしたのは、このテラスハウスの1階のお部屋。
敷地内の通路もオートロックのセキュリティで守られているので、防犯面も安心です。
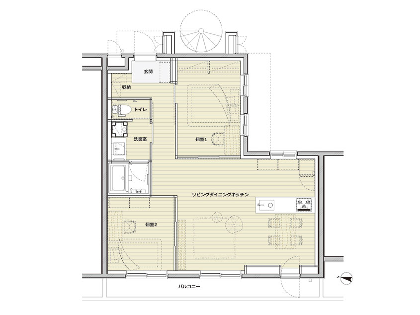
玄関の扉を開けてまず目に入るのは、玄関横に設けられた大きな収納。可動式の棚になっているので、靴を収納しておくのはもちろんのこと、アウトドアグッズやペット用品、普段は使わないキャリーケースなどを置いたり、日用品のストック場所としても重宝しそうです。
間取りは2LDKですが、2つの個室とLDKはいずれも可動引戸で間仕切りしているため、すべて開けることでひとつの空間につながります。さらに玄関側の個室は出入口を2箇所設けているので、家具などで仕切ってコンパクトな2部屋にすることも可能。壁側にオープンクロゼットも設けてあるので、ウォークインクロゼットとして使うこともできそうです。
クローズだったキッチンは対面式に。LDKを見渡しながら家事をすることができます。MUJI×UR団地リノベーションプロジェクトで開発した「組合せキッチン」はあえて収納を設けていないため、無印良品の収納を好きなように組み合わせて、自分だけの理想のキッチンを作ることができます。
洗面室を挟んで浴室とトイレが左右に配置された、コンパクトな水回り。玄関近くにまとめてあるので、帰宅してすぐに手を洗ったり出かける前にトイレを済ませたりと導線もスムーズです。
すべての建具が引戸になっており、窓も多いこのお部屋。開け放つことで風の通り道ができるので、簡単に空気の入れ替えができます。
バルコニーもデッキ敷になっていて、ちょっとしたガーデニングなどを行うのもよさそうです。
まわりに高い建物もないので、静かに落ち着いた環境で生活ができそうです。
間取り

外壁面と床面には断熱材を入れ、窓にはインナーサッシを設けることで住戸の温熱環境を改善することで、床下からの冷気を感じやすい1階の住戸の温熱環境を改善しています。窓が多く、気持ちよく抜ける風を感じられるお部屋の良さを活かしたプランになっています。
物件詳細
- 所在地
- 東京都府中市紅葉丘2丁目
GoogleMapでみる - 交通
- 西武鉄道多摩川線「多磨」駅 徒歩9分
- 価格
- -
- 管理費
- -
- 修繕積立金
- -
- 面積
- 65.34m²
- バルコニー
- 7.20m²
- 構造
- 鉄筋コンクリート造
- 築年数
- 2004年
- 改築年
- 2023年
- 階層
- 2階建て1階部分
- 総戸数
- 21戸
情報登録日:2023/10/20 次回の更新予定日:-