- 価格
- 成約済
- ローンの目安
- -
- 管理費
- -
- 修繕積立金
- -
※ローンの目安は、頭金ゼロ、借入期間35年間、都市銀行・変動金利(0.725%・優遇後)を想定しています。審査内容により、融資の一部、または全部をご利用いただけない場合がございます。予めご了承ください
性能向上リノベーション
「MUJI INFILL 0」を導入
1.新耐震
新耐震基準を満たした物件のみ施工します。
家そのものの頑丈さにも厳しく目を配り、耐震基準を満たした物件にのみリノベーションを行うよう徹底しています。
2.スケルトン
見えない部分が大切です。
見える部分だけが「住まい」ではありません。表面だけ新しくするのではなく、一度スケルトンの状態にして見えない部分も確認し、必要に応じて配線・配管、床壁天井の下地を新しくすることから施工をはじめます。
3.高断熱
全戸温熱計算で一家一家診断します。
現在の新築同等の断熱性能に向上させます。外に面する部分に断熱材、窓に複層ガラスインナーサッシを採用。全戸温熱計算を行い、住まいの快適さを数値で検証しています。
今回リノベーションしたのは、新座団地の5階にあるお部屋。最上階で日当たりも見晴らしも申し分なく、周辺もたくさんの緑に囲まれた立地です。郊外でありながら都心へのアクセスもいい新座周辺は、仕事や子育て、通学にもとても便利そうです。
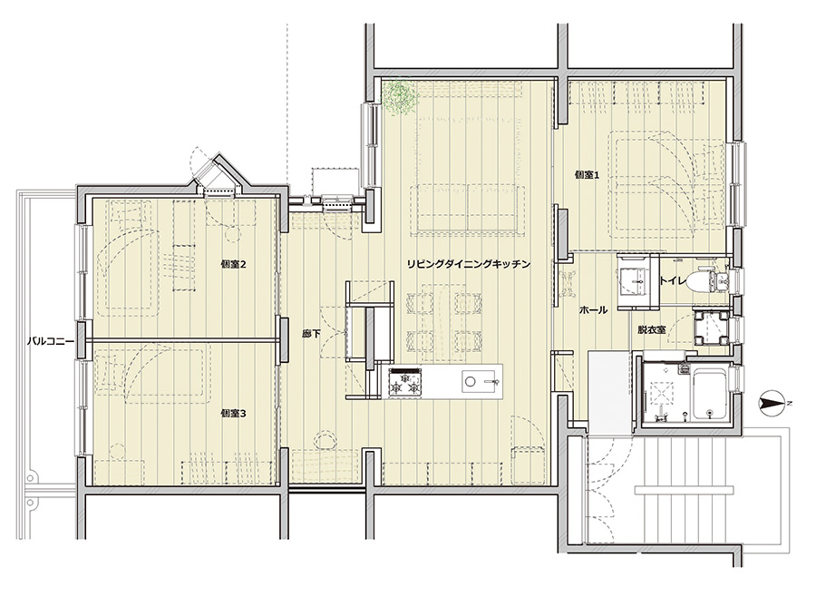
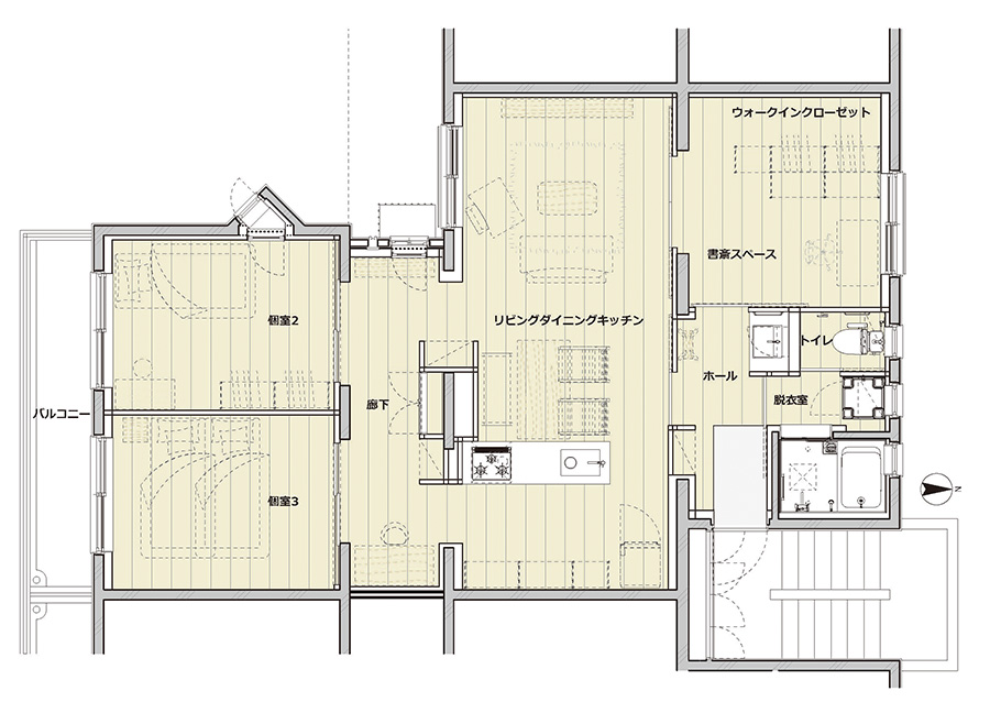
このお部屋の大きな特長は、独立した個室が3部屋確保できること。中央にリビングダイニングを配置し、北側に個室をひとつ、南側にバルコニーへ出られる個室をふたつ用意しました。北側の個室は、リビングダイニングと繋げて大きな一室として使うことも可能。全室引き戸になっているため、お天気のいい日には開け放ってたっぷりと風を通しましょう。
キッチンは、もともと壁付タイプだったものをリビングダイニングとの対面タイプに変更。背面には収納スペースも備えています。
床材は、MUJI×URで共同開発した「ラワン合板フローリング」を採用しています。30×180cmの大判サイズで、ラフな木目の素材感が魅力です。表面にはUV塗装を施し、メンテナンス性能も確保。このお部屋は特別に、アクセントとしてリビングの壁にもフローリングを貼りました。赤茶色を中心とした、幅のある色味を楽しんでください。
浴室・脱衣室・トイレ・洗面台といった水まわりは、玄関の右手にコンパクトにまとめました。洗面台は廊下に設置しているので、帰宅後にそのまま手を洗うことができます。下足入れは床から天井まである大容量。家族みんなの靴を収納できそうです。
外に面した部分と天井に断熱材を使用することで、最上階でも熱が溜まりづらく快適な温熱環境を保ちます。個室を確保しながらも風通しも良好な、みんなが気持ちいいお部屋ができました。
間取り

70平米を超える広いお部屋のため、しっかりと個室を確保しながらもゆったりとした家族の空間もしつらえることができます。全ての個室に大きな窓があるので、明るく気持ちの良いお部屋になります。

北側の個室はリビングダイニングの延長として利用したり、家具収納を使ってウォークインクローゼットしたりとフレキシブルな使い方ができるスペースとなっています。在宅ワークに最適な書斎スペースにすることもできそうですね。
物件詳細
- 所在地
- 埼玉県新座市新座3丁目
GoogleMapでみる - 交通
- 東武東上線「志木」駅 バス8分「団地南」徒歩4分
- 価格
- -
- 管理費
- -
- 修繕積立金
- -
- 面積
- 78.24m²
- バルコニー
- 6.66m²
- 構造
- 鉄筋コンクリート造
- 築年数
- 1970年
- 改築年
- 2023年
- 階層
- 5階建て5階部分
- 総戸数
- 30戸/1010戸
情報登録日:2024/07/23 次回の更新予定日:-