- 価格
- 成約済
- ローンの目安
- -
- 管理費
- -
- 団地積立金
- -
- 棟別積立金
- -
※ローンの目安は、頭金ゼロ、借入期間35年間、都市銀行・変動金利(0.725%・優遇後)を想定しています。審査内容により、融資の一部、または全部をご利用いただけない場合がございます。予めご了承ください
性能向上リノベーション
「MUJI INFILL 0」を導入
1.新耐震
新耐震基準を満たした物件のみ施工します。
家そのものの頑丈さにも厳しく目を配り、耐震基準を満たした物件にのみリノベーションを行うよう徹底しています。
2.スケルトン
見えない部分が大切です。
見える部分だけが「住まい」ではありません。表面だけ新しくするのではなく、一度スケルトンの状態にして見えない部分も確認し、必要に応じて配線・配管、床壁天井の下地を新しくすることから施工をはじめます。
3.高断熱
全戸温熱計算で一家一家診断します。
現在の新築同等の断熱性能に向上させます。外に面する部分に断熱材、窓に複層ガラスインナーサッシを採用。全戸温熱計算を行い、住まいの快適さを数値で検証しています。
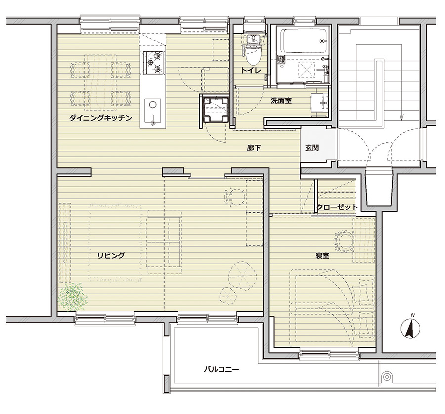
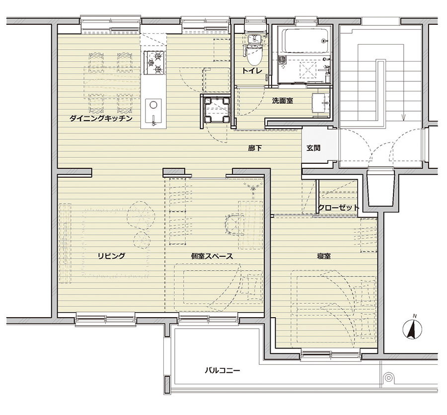
今回リノベーションをおこなったのは、4階建ての4階のお部屋。南向きで建物同士の距離が離れているので、4階でも日当たりがよくとても明るいお部屋です。団地内には住民の方々が運営されているサロンがあったり、植栽のお手入れやお掃除も行き届いていたりと、住民の方々が団地をとても大切にされている様子がうかがえます。
団地でよく見かける南北に広い間口を確保した間取りで、お部屋の中央辺りに玄関があります。コンパクトな空間ですが、下足収納を奥まったところに設けて玄関にものを置かないことで、すっきりとした玄関にしています。
水まわりは大きく変更はしていませんが、今の暮らしに合わせて間取りを整えています。壁側を向いていたキッチンを対面形式に変更することで家族の様子を感じながらお料理をすることができるようにしました。
ダイニングキッチンにはMUJI×UR団地リノベーションプロジェクトで開発した「組合せキッチン」を採用しました。キッチンの下には無印良品の収納やゴミ箱などを使い方に合わせてカスタマイズすることができます。
新しく設けた洗濯機置場は廊下に面していることで、バルコニーまでの洗濯物干し動線もスムーズです。
独立した個室は1部屋ですが、リビングの一部を無印良品のユニットシェルフやカーテンで間仕切ると、テレワークスペースや子供部屋として活用できます。普段は広いリビングとして使うこともできるので、お部屋を余すことなく使うことができます。
コンクリートに直接塗装をすることで質感を残した壁と明るいフローリング、お手持ちの家具を置いても心地よいお部屋です。建具の多くが引戸になっているので、窓と引戸を開ければ南北にしっかりと風が通り抜けます。外に面した壁面と天井には断熱材を入れ、窓にはインナーサッシを設けることで一般的に寒暖差が激しくなりがちな最上階の住戸の温熱環境を改善しました。
間取り

キッチンをダイニングと対面させることで水まわりとバルコニーへの動線を活かしつつ、お部屋全体を見渡すことができるようになりました。

家族構成や住まい方が変わった時には、リビングの一部をカーテンや家具で仕切ることで簡易的なお部屋をもう1つ作ることができます。カーテンや家具で仕切ることで再び大きなリビングに戻すこともできるので、間取りのストレスがなく永く住まうことができそうです。
物件詳細
- 所在地
- 神奈川県横浜市緑区長津田町
GoogleMapでみる - 交通
- 東急田園都市線・JR横浜線「長津田駅」徒歩12分
- 価格
- -
- 管理費
- -
- 団地積立金
- -
- 棟別積立金
- -
- 面積
- 57.00m²(公簿面積)
- バルコニー
- 6.82m²
- 構造
- 鉄筋コンクリート造
- 築年数
- 1971年
- 改築年
- 2023年
- 階層
- 4階建て4階部分
- 総戸数
- 24戸
情報登録日:2024/07/29 次回の更新予定日:-