- 価格
- 成約済
- ローンの目安
- -
- 管理費
- -
- 団地積立金
- -
- 棟別積立金
- -
※ローンの目安は、頭金ゼロ、借入期間35年間、都市銀行・変動金利(0.725%・優遇後)を想定しています。審査内容により、融資の一部、または全部をご利用いただけない場合がございます。予めご了承ください
性能向上リノベーション
「MUJI INFILL 0」を導入
1.新耐震
新耐震基準を満たした物件のみ施工します。
家そのものの頑丈さにも厳しく目を配り、耐震基準を満たした物件にのみリノベーションを行うよう徹底しています。
2.スケルトン
見えない部分が大切です。
見える部分だけが「住まい」ではありません。表面だけ新しくするのではなく、一度スケルトンの状態にして見えない部分も確認し、必要に応じて配線・配管、床壁天井の下地を新しくすることから施工をはじめます。
3.高断熱
全戸温熱計算で一家一家診断します。
現在の新築同等の断熱性能に向上させます。外に面する部分に断熱材、窓に複層ガラスインナーサッシを採用。全戸温熱計算を行い、住まいの快適さを数値で検証しています。
神奈川県横浜市にある南長津田団地は、田園都市線・横浜線が乗り入れる長津田駅から徒歩15分ほどの場所にあります。今回リノベーションしたのは、その中の一室。11号棟の最上階のお部屋です。
このお部屋には、MUJI×UR 団地リノベーションプロジェクトで独自に開発したアイデアがたくさん隠れています。
まずは床材。共同開発商品である幅広の「ラワン合板フローリング」は、ラフな合板の木目の素材感を生かした床材です。色幅があるためどんな家具もマッチします。今回はリビングの壁にもこのフローリングを貼り、空間にアクセントを加えました。
次に「組合せキッチン」。あえて作りつけの収納を設けないキッチンは、お部屋にすっきりスマートな印象を与えます。キッチンの下には無印良品の収納を組み合わせて、使いやすいようにアレンジしてみましょう。
最後に「組合せテーブル」。キッチンカウンターと同じ高さ・同じ素材のテーブルは、向かい合わせたりL字に並べたり、レイアウト次第でキッチンの可能性を広げることができます。このお部屋は窓から外の景色を見られる対面型キッチンなので、テーブルをつなげるとまるで大きなダイニングテーブルでお料理をしているみたい。テーブルとスツールどちらも可動式なので、キッチン以外の場所に移動して使うこともできます。どんなふうに使おうか、考えるだけでワクワクしちゃいますね。
浴室・トイレ・洗面台は1箇所にまとめていますが、洗濯機置き場は廊下に設置しました。バルコニーまでの導線に扉がひとつもなく、スムーズに洗濯物を運べます。
独立した個室には、扉付収納も完備。この個室からもバルコニーへアクセスできます。またリビングの一部を家具で仕切れば、簡易的な個室を作り出すことも可能。一角にデスクを置いて、リモートワークスペースや書斎のように使うのもいいですね。
最上階のため日当たりは申し分ありません。窓にはインナーサッシを設置し、外に面した部分と天井に断熱材を使用することで、お部屋の環境を快適に整えました。
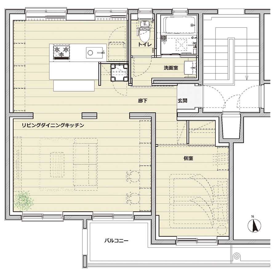
間取り

団地特有の壁式構造を活かし、広々としたリビングとダイニングキッチン、個室を用意しました。キッチンとリビングの間にはコンクリートの壁が所々にあり、緩やかに空間を分けています。

無印良品のユニットシェルフなど家具を使って、リビングの一部に書斎スペースを設けることもできます。腰高の家具を使うことで、圧迫感なく空間を分けることができそうですね。空間の使い方が固定されてしまう壁とは違い、家具で空間を分けることで住まい方に合わせて空間の使い方を変えることができます。
物件詳細
- 所在地
- 神奈川県横浜市緑区長津田町
GoogleMapでみる - 交通
- 東急田園都市線・JR横浜線「長津田駅」徒歩12分
- 価格
- -
- 管理費
- -
- 団地積立金
- -
- 棟別積立金
- -
- 面積
- 57.00m²(公簿面積)
- バルコニー
- 6.82m²
- 構造
- 鉄筋コンクリート造
- 築年数
- 1971年
- 改築年
- 2023年
- 階層
- 4階建て4階部分
- 総戸数
- 24戸
情報登録日:2024/06/03 次回の更新予定日:-