- 価格
- 成約済
- ローンの目安
- -
- 管理費
- -
- 修繕積立金
- -
※ローンの目安は、頭金ゼロ、借入期間35年間、都市銀行・変動金利(0.725%・優遇後)を想定しています。審査内容により、融資の一部、または全部をご利用いただけない場合がございます。予めご了承ください
今回ご紹介する物件は、都営三田線の志村三丁目駅から徒歩約7分。板橋区の駅近マンションです。スーパーやファミリーレストランも多く、大規模なアミューズメントセンターや、駅前には大型家具店もあり利便性は申し分ありませんが、周辺はとても静かです。しかも窓にはインナーサッシを設置しているため、断熱性能を向上させるとともに騒音なども気になりません。
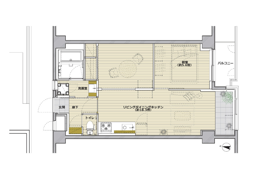
無印良品のリノベーションの大きな特徴のひとつである、生活に合わせて変えられる間取り。このお部屋ももちろん、大きな空間を仕切って個室をつくることができます。個室には備え付けの収納があり、その扉には「MUJI×UR」で共同開発した「ダンボールふすま」を採用。無印良品を象徴するそのままの素材“クラフトダンボール”で作られていて、強化ダンボールのため軽く、一人でも簡単に持ち運びができます。このダンボールふすまを移動させることで、ダイニングキッチンとの間仕切りにも使うことができます。
キッチンは壁付けで、空間の広さを確保。キッチンの下にはごみ箱や収納グッズを入れることで、自由にカスタマイズすることができます。油跳ねや汚れが気になる壁にはお掃除のしやすいパネルを採用。日々のお手入れもしやすく、きれいな状態を保つことができます。
縦長のリビングダイニングの窓際は、床にタイルを貼って緩やかに空間を分けました。このタイルは玄関と同じものを使い、お部屋全体の統一感を出しています。柔らかい日差しが差し込む明るい窓際は、植物を置いてインナーテラスのようにしたり、お気に入りのチェアを置いてサンルームにしたり、お好みで演出してみてください。
お部屋の壁や天井はほぼ白で統一していますが、フローリングや洗面台、一部の棚板には木目の板を使い、温かみのある雰囲気にしました。廊下にある、ハンガーパイプ付き収納もそのひとつ。玄関からすぐにアクセスできるので、いつも着るアウターを掛けたり、防災グッズを置いたり、シーズンオフの靴を収納するのもいいですね。
もうひとつ、壁で仕切られた個室も用意しています。この個室はバルコニーにつながっているので、寝室や趣味の部屋、書斎、子ども部屋などにもおすすめ。
全体の広さはコンパクトですが、空間にメリハリをつけることでゆとりのあるお部屋が完成しました。
インナーサッシを設置したことで、窓際の隅々までお部屋を使い切ることができます。明るく柔らかな雰囲気のお部屋なので、ゆっくりとした時間を過ごせそうですね。
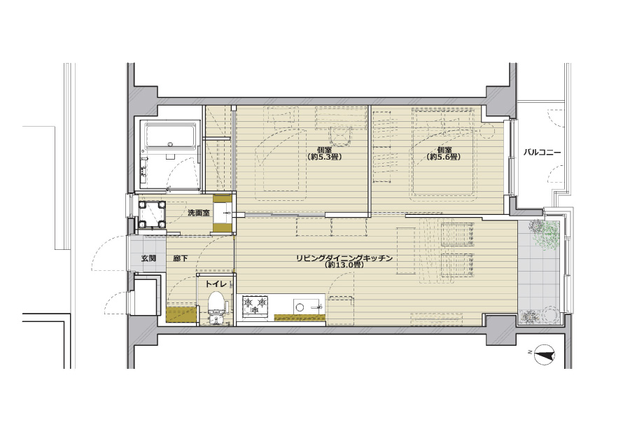
間取り

水廻りはできるだけコンパクトに、その分作り付けのクローゼットやリビングダイニングキッチンの広さを確保しました。完全に独立した個室も1部屋設けているので、寝室や書斎としてご利用いただけます。

作り付けのクローゼットのダンボール襖を移動することで、お部屋をもう1つ設けることができます。寝室を増やしたり、寝室とは別の書斎として利用したりと使い方は様々です。
物件詳細
- 所在地
- 東京都板橋区相生町
GoogleMapでみる - 交通
- 都営三田線「志村三丁目」徒歩6分
- 価格
- -
- 管理費
- -
- 修繕積立金
- -
- 面積
- 52.2㎡
- バルコニー
- 3.31㎡
- 構造
- RC造5階建て
- 築年数
- 1984年
- 改築年
- 2024年
- 階層
- 2階部分
- 総戸数
- 36戸
情報登録日:2024/06/17 次回の更新予定日:-

