- 価格
- 成約済
- ローンの目安
- -
- 管理費
- -
- 修繕積立金
- -
※ローンの目安は、頭金ゼロ、借入期間35年間、都市銀行・変動金利(0.725%・優遇後)を想定しています。審査内容により、融資の一部、または全部をご利用いただけない場合がございます。予めご了承ください
性能向上リノベーション
「MUJI INFILL 0」を導入
1.新耐震
新耐震基準を満たした物件のみ施工します。
家そのものの頑丈さにも厳しく目を配り、耐震基準を満たした物件にのみリノベーションを行うよう徹底しています。
2.スケルトン
見えない部分が大切です。
見える部分だけが「住まい」ではありません。表面だけ新しくするのではなく、一度スケルトンの状態にして見えない部分も確認し、必要に応じて配線・配管、床壁天井の下地を新しくすることから施工をはじめます。
3.高断熱
全戸温熱計算で一家一家診断します。
現在の新築同等の断熱性能に向上させます。外に面する部分に断熱材、窓に複層ガラスインナーサッシを採用。全戸温熱計算を行い、住まいの快適さを数値で検証しています。
今回リノベーションしたお部屋があるのは、神奈川県横浜市にある上中里団地の8号棟。目の前が小学校、その先は大きなゴルフ場になっていて、すぐそばにハイキングコースがたくさんある自然たっぷりの場所です。3階のお部屋なので眺望も良く、慣れてしまえば階段の登り降りも気にならないはず。リノベーション前はお部屋に段差がありましたが、それらをすべて無くしてバリアフリーに生まれ変わりました。
大きな窓からたっぷりと光が差し込むリビングは、壁面に合板を使いました。お部屋全体を明るく見せてくれると同時に、木目の暖かみが感じられます。カーテンで空間をゆるやかに仕切って、書斎や寝室を増やすことも。
リビングと向かい合うキッチンダイニングは、「MUJI×UR」が開発した組合せキッチンを採用。壁付けタイプから対面式に変更しています。キッチンカウンターの下や背面にラックやワゴンを置いたり、かごやボックスで仕分けたり、自分の使いやすい収納にアレンジしてみてください。
キッチンからダイニングを繋ぐ壁には、腰高のカウンターを設置。調味料やパスタを入れたキャニスター、お気に入りのお料理本、ちょっとしたグリーンを飾ってもいいですね。このカウンターでダイニングにある出窓の奥行きを増やして、ヌックのようなおこもりスペースも作ってみました。ひと息つきたいときはここに座って、コーヒーを飲んだり本を読んだり、お天気のいい日にはウトウト……なんて幸せな想像が膨らみます。
このお部屋で一押しのポイントは、地味にすごい収納力。玄関には可動式の下足棚を2カ所と、傘やエコバッグを吊るせるハンガーパイプが。洗面室の洗濯機上には、明かりを遮らずハンガーもかけられるルーバー棚を。その場所で使うもの、それぞれの居場所を決めることで片付けもスムーズになりそうです。洗面室と廊下の間には、どの部屋にも属さない「なんでも収納」を用意しました。日用品のストックや、バスグッズ、アウトドア用品や掃除用具をしまっておいたり、ハンガーパイプがあるので洗濯物の一時置き場にしたり、お気に入りを並べる飾り棚にする等、可能性は無限大。ロールスクリーンをつけて目隠しすれば、生活感も気になりません。
玄関横には独立した個室も。作りつけの収納があるので、寝室や子ども部屋にぴったりですね。この個室も明るい合板の壁面になっています。
外壁部分には断熱材、窓にはインナーサッシを採用して、温熱環境も整えました。ものに居場所を決めてあげられるこのお部屋は、家族にとっても最高の居場所になってくれるはずです。
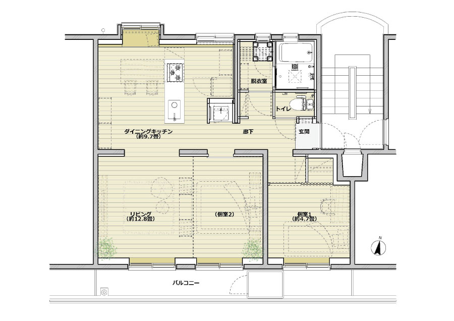
間取り

ライフスタイルの変化に合わせて、簡単に間取りを変更することができます。いつまでも暮らしやすい可変性の高い空間です。

物件詳細
- 所在地
- 神奈川県横浜市磯子区上中里町
GoogleMapでみる - 交通
- 根岸線「洋光台」バス15分「さわの里小学校前」徒歩1分
- 価格
- -
- 管理費
- -
- 修繕積立金
- -
- 面積
- 56.1㎡(公簿)
- バルコニー
- 9.49㎡
- 構造
- 鉄筋コンクリート造
- 築年数
- 1974年
- 改築年
- 2023年
- 階層
- 4階建て3階部分
- 総戸数
- 848戸
情報登録日:2024/11/05 次回の更新予定日:-

