- 価格
- 成約済
- ローンの目安
- -
- 管理費
- -
- 修繕積立金
- -
※ローンの目安は、頭金ゼロ、借入期間35年間、都市銀行・変動金利(0.725%・優遇後)を想定しています。審査内容により、融資の一部、または全部をご利用いただけない場合がございます。予めご了承ください
今回リノベーションを行ったのは、千葉県習志野市にある「秋津第二団地」。5階建の4階のお部屋です。エレベーターはありませんが、団地ならではの日当たり、風通しのよさを感じることができます。敷地内は管理が行き届いており、きれいに剪定されている木や草花も多いため四季の変化を楽しむこともできそうです。
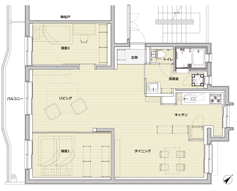
玄関はもともとあった壁を取り払うことで、暗く籠った印象がなくなりました。玄関のすぐ近くに洗面室を設けているので、入口の引戸を開けておけば帰宅してすぐに手を洗ったりお風呂に入ったりすることができそうです。
キッチンはリビングダイニングから少し奥まったところにありますが、仕切りを設けていないので家族の気配を感じながら家事を行うことができます。MUJI×UR団地リノベーションプロジェクトで開発した、「組合せキッチン」を採用しています。作り付けの収納を設けていないキッチンなので、使う方に合わせて自由にカスタマイズすることができます。
水まわりはもともとコンパクトにまとまっていたので、その良さは活かしながら設備の更新を行っています。トイレ、浴室、洗面室には換気扇がついているので換気もしっかり行うことができます。また、洗面室の入り口は引戸にしているので、換気しやすく、風通しが良い水まわりになっています。
80平米超のお部屋ですが、広々と余すことなくお部屋を使うことができます。建物構造は壁式構造となっており、2つの個室を確保しています。ダイニングスペースを家具で仕切ることでもう一部屋個室をつくることができます。全ての個室に大きな窓があるので、風通しがよく明るいお部屋となっています。
間取り
外壁面と天井面には断熱材を入れ、窓にはインナーサッシを設けることで住戸の温熱環境を改善しています。窓が多く広さのある住戸ですが、ライフスタイルに合わせて快適に住まうことができそうです。
物件詳細
- 所在地
- 千葉県習志野市秋津2丁目
GoogleMapでみる - 交通
-
JR総武線「津田沼」駅バス11分「秋津小学校」停歩4分
JR京葉線「新習志野駅」駅 徒歩14分
- 価格
- -
- 管理費
- -
- 修繕積立金
- -
- 面積
- 80.37m²
- バルコニー
- 10.63m²
- 構造
- 鉄筋コンクリート造
- 築年数
- 1980年
- 改築年
- 2023年
- 階層
- 5階建て4階部分
- 総戸数
- 30戸
情報登録日:2024/1/15 次回の更新予定日:-
