MUJI×UR 団地リノベーションプロジェクト
バスで行く。東京団地ハイキングツアー
※このレポートは、2013年11月2日に都内で開催されました、「バスで行く。東京団地ハイキングツアー」の様子を採録しています。
高島平団地(東京都板橋区)
0分程で高島平団地へ到着。まずは集会所にてランチです。ランチを取りながら、昔の団地暮らしの様子が分かる「団地日和」(協力:UR都市機構)のDVD映像を見ました。
その後、改めて門脇氏よりお話いただきました。
- 門脇
- 先ほどの映像面白かったですね。日本では集合して住まう、特に縦に積み重なって住まうという形式は、ようやく戦後になって本格化しました。コンクリート住宅に住むのも始めての経験ですが、それまで日本人が住んでいた木造住宅はスカスカで、気密性が低いので、火を燃やしても一酸化中毒になる心配があまりない。でも、コンクリートの住宅では、きちんと換気をする必要がある。こういった注意が、映像の随所にちりばめられていましたが、「集合して住まうと、生活はこう変わりますよ」という強いメッセージを、先ほどの映像には感じることができました。
さて、ここからは、少し視点を変えて、当時輝かしかった団地が、現在では様々にリノベーションされている、という話をさせていただこうと思います。
先ほどバスの中でも説明したように、現在の団地には高齢者が多くお住まいになられています。そこで、高齢者も暮らしやすいようにリノベーションすることが、日本では課題になっています。実例を紹介しましょう。日本の話をした後には、海外の事例についてもお話ししていきたいと思います。
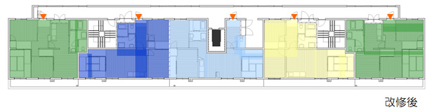
まず、団地にはエレベーターがないことが大きな課題です。そこで、エレベーターを増築するところも増えてきました。こうした事例は、東京でも見られると思いますが、階段室の前についているのがエレベーター。しかし、このやり方ではエレベーターが踊り場に着床するため、半階分の上り下りが生じ、完全なバリアフリーにはなりません。そこで、北側に共用廊下まで増築しようとした例もあります。
この事例では、階段を1つ取ってしまい、そこをエレベーターのシャフトとして利用しています。廊下も増築していますので、玄関の位置を変える必要が生じ、構造体にも手を加えています。どうせならばと、住宅どうしを区切るコンクリートの壁にも手を加え、1階につき6戸だった住宅の数を5戸にして、住宅を広くしています。

共用廊下+EV設置:改修前

共用廊下+EV設置:改修後
- 門脇
-
工事は内装をはがして進めていきます。コンクリートにも穴を開けて、北側に新しい玄関をつくっています。階段も新しくしています。階段も屋根もコンクリートカッターで切り落としている。工事中は、ほとんど壁一枚で建っているような外観です。
次の事例も、エレベーターと共用廊下を増築した例です。当時の鉄筋コンクリート造の住宅には、断熱をするという概念がなかったので、ところどころ結露して、内装が傷んでいました。しかし、内装はすべてやりかえるため、リノベーション後はほとんど新築マンションのようです。あるいは車いすの方が使えるお風呂などもつくることができます。構造体をいかしながらも、大規模な改修が行われています。

共用廊下+EV設置:改修前

共用廊下+EV設置:改修後
共用廊下増築+三戸二化:改修後
- 門脇
-
日本ではこのようなリノベーションが行われていますが、海外にも団地はあり、実は日本の団地は、ヨーロッパの団地がモデルになっています。では、本場の団地のリノベーションはどのようなものなのか、ご覧いただきましょう。
まず、オランダの団地です。つくり方は少し違いますが、考え方は日本と似ています。これももともとは階段室型の住棟でしたが、日本と同じくアクセスが問題になったので、共用廊下とガラス張りのエレベーターが増築されています。エレベーターがガラス張りなのは、死角をなくし、犯罪が起こりにくいようにするためです。

増築された共用廊下とエレベータ

増築された共用廊下
- 門脇
- こちらは、もともとの住棟の屋根の上に、住宅を積むようにして増築した例です。ヨーロッパは地震がないので、こうした増築もやりやすいんですね。

マーススルイスの集合住宅

- 門脇
- こちらもレンガ造の5階建ての集合住宅に対して、2階分を増築した事例です。増築された住宅は、一つ一つがコンテナ式になっていて、工場でつくった物を載せていっています。増築した住宅へのアクセスは、隣に高層の集合住宅を建てて、そこから新しい住宅まで行けるようにしています。そうすると、高層棟のエレベーターを使って、古い団地の増築部分にも人が出入りすることができるようになります。

Ams-Noordの集合住宅(アムステルダム,1999年改修)

- 門脇
- もう一つオランダの事例を。この団地では、隣に高速道路があり、汚れた空気が入ってくるので、いったんガラスでラッピングしています。もともとの外観は、日本の団地ととても似ていますが、リノベーション後はとても現代的な外観に変わっています。

Osdorperhof(アムステルダム,2001年改修)

- 門脇
-
次もオランダの事例です。ヨーロッパには地震がないので、長い住棟をつくることができます。集合住宅では住宅同士が壁を共有しているので、隣の暖房の熱が伝わり、光熱費が安くなるんですね。だからとにかく長いものを、という発想になった。一方で、日本で長い集合住宅をつくると、地震のときにねじれて、壁が割れてしまうんです。だから日本では長い集合住宅があまりつくられなかったのですが、ヨーロッパの長い集合住宅は、暖房効率は良くても、道路側から見えない死角が裏にできてしまいますので、そこで犯罪が起きる。不良に呼び出されるのは、学校の体育館裏と相場が決まっていますが、これと同じことですね(笑)。
そこで、1・2階部分を抜いて大きなゲートにして、団地に裏と表をつくらないようにしています。ゲートにした部分には、後から柱を建てて補強しています。さらにバルコニーを増築し、また上には木造の軽い住宅を載せています。エレベーターも新しく増築されたので、地面と近い下の階には子育てをする家族が住まい、上の階には高齢者が住んでいます。

Complex50(アムステルダム)改修前

Complex50(アムステルダム,2004年改修)
改修後断面図,ビッグゲートの詳細
- 門脇
-
ヨーロッパにも、高島平のような高層団地がたくさんあります。これはオランダ・デルフトの団地です。もともとのアウトラインを切り取って、いかにもダッチ・デザインといった外観に変えられています。ヨーロッパのリノベーションは、建築家が手がけることも多いので、デザイン的にも頑張ります。また、もともとは平行配置の住棟に対して新しい住棟を増築し、ロの字型の住棟配置に改められています。
先ほどの映像では、居住者があまり車を使わないことが印象的だったと思いますが、現在では車の保有率も上がり、団地では駐車場の整備も問題になっています。ヨーロッパも同じ状況で、この団地では、中庭の2階レベルにデッキを掛け渡し、1階部分は駐車場としています。

デルフトの高層団地(デルフト)改修前

デルフトの高層団地(デルフト)工事中
- 門脇
- これは団地を高齢者用の住宅に改修した例です。ここでも平行配置の住棟が、増築によってロの字型の囲み配置に変えられています。そして、オートロックのエントランスをつくって、中庭はセキュリティが保たれた状態にする。その中庭には、共用のダイニングが増築されています。食事はみんながこのダイニングで取ることによって、居住者同士が仲良くなり、お互いに助け合うような関係をつくろう、という意図があるのだと思います。

パガニーニホフ(スパイケニッセ,2003年改修)

- 門脇
- 面白いのは、ここは高齢者専用の住宅ですが、入居資格が55歳以上とされていること。55歳なんて高齢者とは言えないじゃないかと思われるかもしれませんが、なぜこんなに若い設定なのかというと、ここにも助け合いの仕組みが関係しています。若くて元気なうちは、もっと高齢の方を積極的に手助けし、自分が年を取って、身体の自由がきかなくなってきたら、今度は若い人に助けてもらおうという、援助を貯金するような考え方ですね。また、結果として色々な年齢の人が移り住むことになりますから、コミュニティ全体としてサステナブルである、ということも言えると思います。

パガニーニホフの中庭:55歳以上が入居可能

左側増築棟がコモンダイニング
- 門脇
- 次は、ル・コルビジェという近代建築の大巨匠が、フィルミニというフランスの田舎町につくった集合住宅を紹介します。これも高層団地のモデルになった建物です。足元はピロティ、上に幼稚園がつくられ、建物全体が街として設計されています。この集合住宅は、「ユニテ・ダビタシオン」という名前がつけられていて、世界に4つ建てられています。しかし、うち3棟がスラム化してしまいました。ヨーロッパでも日本と同じく、団地はだんだんとネガティブなものになっていったんですね。そこで、このフィルミニのユニテでは、3分の1を民間に売り、そのお金を元手にスラム化を解消する動きが進んでいます。また、コルビジェの建築は価値があるので、住戸を購入したお金持ちは、自分たちの生活に合うように手を加えています。もともとの住戸は、慎ましい社会住宅として設計されたもので、間口も狭いので、2つの住宅をつなげて1つに改修したりしています。中にはジャグジーがついている住戸もありました。

フィルミニのユニテ・ダビタシォン(2005年改修)

改修後住戸(二戸一化改修)
- 門脇
- 次の団地はリヨンのものですが、これも日本の団地のモデルになったものです。都市で工業がどんどん盛んになっていくと、工業で都心は汚れますから、人が住まうエリアは郊外につくりたい。そして、集合住宅は団地という形式がふさわしい。そういうことを、トニー・ガルニエという建築家が考え、この概念を具現化したものを「工業都市」と名付けました。しかし、今の都市では、主要な産業は工業から知的産業へと転換し、都心もきれいになっています。であるならば、都心に人が住む場所があっても良い。これが都心回帰という減少ですね。 一方、郊外はただ住まいだけのエリアではなく、働く場や知的な刺激を得る場所があって良い。そういうわけで、団地がSOHOにリノベーションされたりしているわけです。このガルニエの「工業都市」も、そうした流れの中にあって、なんと団地自体が美術館へと改修されています。この団地には、今でも人が住んでいるのですが、この歴史的な団地を見学し、さらに団地の妻壁にアーティストが絵を描いて、それをガイド付きで見て回る、ということが行われているのです。トニー・ガルニエによる「工業都市」のドローイングも、団地の妻壁に転写されて、多くの人々が眺めていました。
- 門脇
- 高島平も同じ状況で、住むことだけが目的の場所ではない、もっと様々な活動の場として変えていこう、という動きがご覧になれると思います。
- 土谷
- ありがとうございました。それでは高島平団地の見学に行きましょう。