- 価格
- 成約済
- ローンの目安
- -
- 管理費
- -
- 修繕積立金
- -
今回リノベーションをした物件は、5階建ての5階のお部屋です。
エレベーターはないですが、足腰は鍛えられそうです。共用階段や廊下は管理が行き届いており、きれいです。玄関ドアもこの団地全体で交換しています。
玄関の収納は、オープンな可動棚を設けたことで空間が広く感じます。窮屈な印象は少ないのではないでしょうか。玄関脇の壁にある長押はそのまま残しているのでコートなどをかけることができます。
一般的に、最上階は夏は熱く、冬は寒くなってしまいます。「MUJI INFILL 0」では、温熱計算を行い、適切な断熱材を天井や壁に施しました。また、断熱効果を高めるため、既存の窓の内側に複層ガラスの樹脂製インナーサッシを採用しています。住まい全体の温熱性能を見直すことで、長く快適を保つことができ、基本的な「住み心地の良さ」を確保しています。
団地ならではですが、建物同士の間隔にゆとりがあるので、昼間はあかりをつけなくても、生活することができそうです。南側だけではなく、北側にもバルコニーがあるので、窓を開けると気持ちの良い風が通り抜けていきます。
LDKは、壁ではなく、作り付けの収納で緩やかに空間を仕切っています。
PPボックスの収納は、取り外すこともできるので使い方にあわせて変えていくことができます。一部のスペースは、デスクとしても使えるようにしているので、自分が使いやすいように変えていくことができます。
キッチンには、MUJI×UR団地リノベーションプロジェクトで開発したグレーの持出しキッチンを採用しています。
余計なものはできるだけなくした、最低限の機能をもつシンプルなキッチンです。
家電の収納などは、作り付けの収納内に仕舞うことができるので、家具を買わなくてもすっきりおさまります。
水まわりは、1ヶ所にまとめてシンプルに整えました。
デザインはシンプルにして、保温浴槽や、節水型トイレなど目に見えない部分にも気を配り、普段使いしやすい商品を採用しています。
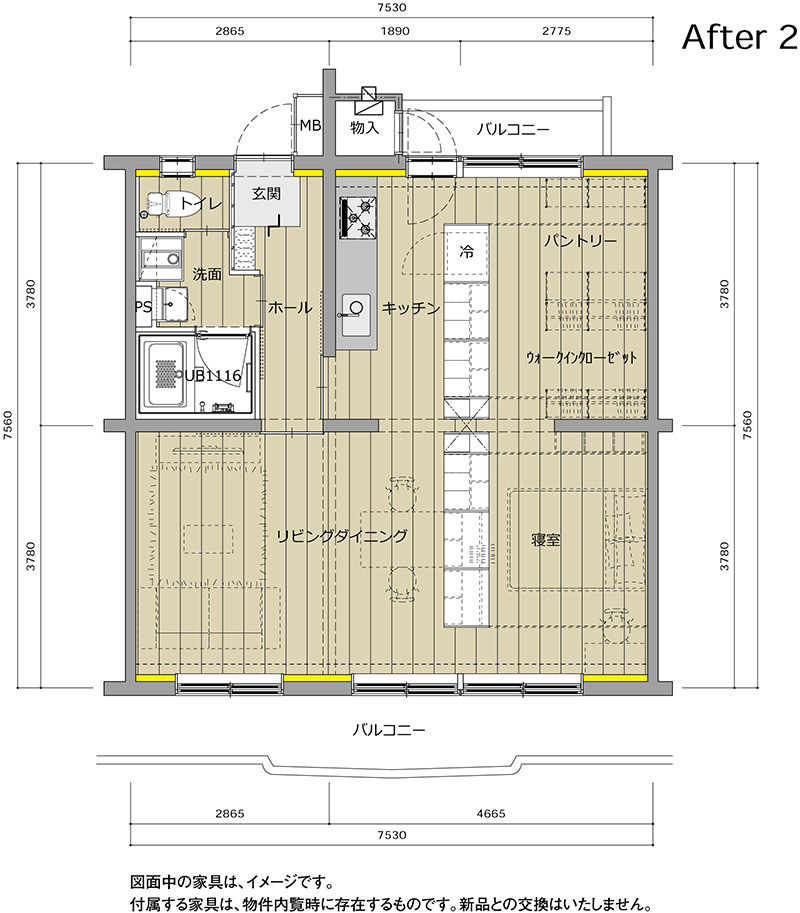
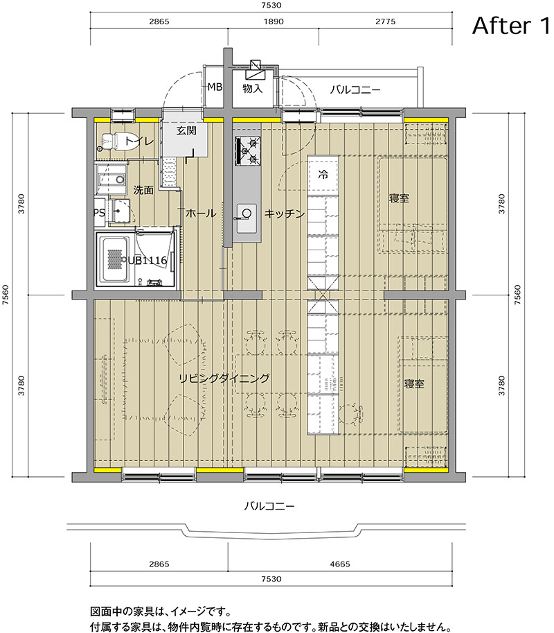
間取り
細かく仕切られた間取りをすべて取払い、一室空間の間取りとしました。このプランの特長は、一室空間の中央に位置する壁面収納です。この収納はキッチンでは家電収納や食器棚として、ダイニングからは書類や小物の収納棚として、寝室からはワードローブやドレッサーとして四方から各空間によって機能します。
この壁面収納は一室空間の中央に位置することで、共用空間(LDK)とプライベート空間(寝室)を緩やかに目線を隠しながら隔てることができます。どこにいても家族の存在を感じることができ、天井に埋込まれたカーテンレールを使用して、カーテンで部屋を間仕切ることもできます。大掛かりな工事を必要とせずとも、カーテンを上手に利用して、1LDKとしても2LDKとしても間取りを変化させることができます。
もともとの団地住棟特有の特長を生かしながら、現代のくらしに合うように工夫された一室空間に、「MUJI INFILL 0」の高性能な温熱仕様が一体となり、さまざまなライフスタイルに対応できるプランになっています。
物件詳細
- 所在地
- 東京都町田市山崎町
GoogleMapでみる - 交通
- 小田急線・JR横浜線「町田駅」バス約15分「北二号」徒歩4分
- 価格
- -
- 管理費
- -
- 修繕積立金
- -
- 面積
- 58.03㎡
- バルコニー
- 10.54㎡
- 構造
- 鉄筋コンクリート造
- 築年数
- 1976年
- 改築年
- 2019年
- 階層
- 5階建て5階部分
- 総戸数
- 20戸
情報登録日:2021/7/5 次回の更新予定日:-
