- 価格
- 成約済
- ローンの目安
- -
- 管理費
- -
- 修繕積立金
- -
何度か無印良品のリノベーションでリノベーションをしている、府中市の車返団地。そこに新たなお部屋が完成しました。中層の団地が立ち並ぶエリアにある、5階建て・最上階のお部屋です。
団地内は緑が多く、ゆったりとした環境となっており、光と風が通り抜ける気持ちがいいお部屋です。すべてを壊して新しくするのではなく、使えるものはそのまま生かしながらリノベーションをしています。
和室では、MUJI×UR団地リノベーションプロジェクトで開発した麻畳とダンボールふすまを採用しています。麻畳は、直に座っても気持ちの良い質感なので和室として使っても、家具を置いて洋室として使っても、どちらの暮らしにもフィットするのが特長です。
北側の和室とダイニングの間のふすまを外すと、空間を繋げることができるのでリビングダイニングとして使用してもよさそうです。敷居や鴨居は、年月を重ねた味わいを生かすため、あえてそのまま残しています。
キッチンはMUJI×UR団地リノベーションプロジェクトで開発した組合わせキッチンを採用しています。設備機器(洗面・トイレ・お風呂)は新規で交換しています。水まわりのスペースはコンパクトにまとまっているので、無駄のない空間になります。
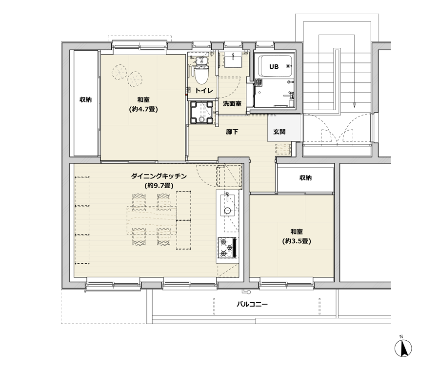
間取り
数ある団地の中でも、代表的な階段室型の住戸をリノベーションしました。標準的な他の字型の間取りをベースに、設備を更新し、暮らしやすくなるよう断熱性能を向上しています。和室にもともとあった押入をそのまま生かしているので、収納量は十分確保されています。
物件詳細
- 所在地
- 東京都府中市白糸台5丁目
GoogleMapでみる - 交通
-
京王線「武蔵野台」駅 徒歩 約5分
西武多摩川線「白糸台」駅 徒歩 約15分
- 価格
- -
- 管理費
- -
- 修繕積立金
- -
- 面積
- 48.99m²
- バルコニー
- 5.94m²
- 構造
- 鉄筋コンクリート造
- 築年数
- 1975年
- 改築年
- 2022年
- 階層
- 5階建て5階部分
- 総戸数
- 40戸
情報登録日:2021/11/21 次回の更新予定日:-