- 価格
- 成約済
- ローンの目安
- -
- 管理費
- -
- 修繕積立金
- -
性能向上リノベーション
「MUJI INFILL0」を導入
今回リノベーションをおこなったのは、港南台めじろ団地5階のお部屋。近くには無印良品の大型店舗もあり、賑わいがあります。団地内は隅々まで管理が行き届いており、バルコニーや窓辺からは四季折々の木々や草花を望むことができます。
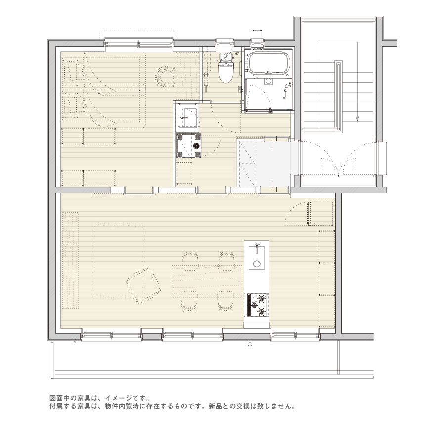
玄関には壁一面に可動棚収納を設けました。下足棚としての利用はもちろん、ちょっとしたアウトドアグッズや、お子様の外遊び道具も収納することができます。玄関から直接や洗面にアクセスできるので、リビングを通る前に手を洗ったり汚れたものをすぐに洗濯機へ放り込んだりすることもできます。洗面室はゆったりした広さを確保しているので、朝の身支度や家事もしやすくなっています。
リビングダイニングは大きな窓が2か所あり、非常に明るく風通しが良い空間となっています。対面式のキッチンから、家族の様子を見ながらお料理をすることができます。キッチンにも窓があり、外を眺めながら料理をすると気持ちがよさそうです。
寝室にも腰高の窓があり、リビングダイニングとの間の扉を開けることで気持ちよく空気が抜けていきます。 隣の建物との距離が離れているので、周囲の視線や気配も気にならず落ち着いて過ごすことができそうです。
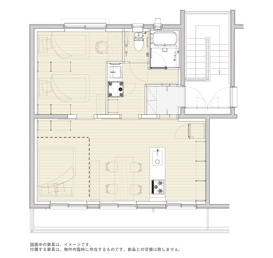
間取り
元々の間取りで現代の生活には少し不便な水廻りを中心に間取りを整えました。東西にある窓から風と光が抜ける間取りに変更したので、お部屋全体が明るく柔らかい印象になっています。お風呂とトイレにも窓があるので、換気もしっかり行き届きそうです。外壁面には断熱材を入れ、窓にはインナーサッシを設けることで一般的に寒暖差が激しくなりがちな最上階の住戸の温熱環境を改善しています。
リビングダイニングの一部を家具やカーテンレールなどで仕切ることで、一時的な寝室を設けることができるのでご家族の変化に合わせて住まい続けることができます。場合によってはテレワークスペースとして利用しても良いかもしれません。
物件詳細
- 所在地
- 神奈川県横浜市港南区港南台6丁目
GoogleMapでみる - 交通
- JR根岸線・京浜東北線「港南台駅」徒歩16分
- 価格
- -
- 管理費
- -
- 修繕積立金
- -
- 面積
- 51.18m²
- バルコニー
- 8.26m²
- 構造
- 鉄筋コンクリート造
- 築年数
- 1974年
- 改築年
- 2021年
- 階層
- 5階建て5階部分
- 総戸数
- 30戸
情報登録日:2022/3/25 次回の更新予定日:-
