- 価格
- 成約済
- ローンの目安
- -
- 管理費
- -
- 修繕積立金
- -
性能向上リノベーション
「MUJI INFILL 0」を導入
今回リノベーションを行ったのは、片倉台住宅。エレベーターのない5階建て4階のお部屋です。お部屋の南側が公園となっており、視界を遮る建物がないので陽の光が気持ちよく入ってきます。
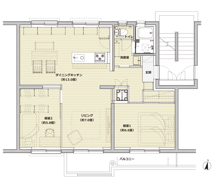
玄関土間、ホールをコンパクトにしてお部屋を広くとれるようプランニングしています。玄関近くに洗面室を設けているので、帰宅してすぐに手を洗ったり、お風呂に入ることができます。
お部屋の中心にキッチンを配置し、リビングとダイニングを緩やかにつないでいます。キッチンを対面式にすることで、家族の様子を見ながらお料理をすることでができます。背面にも窓あるので、明るく開放的なキッチンとなっています。
個室は2部屋設けています。また、LDKの一部を無印良品のユニットシェルフで間仕切ことで、テレワークスペースや子ども部屋としても活用できます。普段は広いリビングとして使うことができるので、お部屋を余すことなく使うことができます。
間取り
1969年築63.43㎡のお部屋をいまの暮らし方に合うようリノベーションしました。天井と外壁面には断熱材を入れ、窓にはインナーサッシを設けることで一般的に寒暖差が激しくなりがちな最上階の住戸の温熱環境を改善しています。南側の窓から入る暖かな光と、気持ちよく抜ける風を感じられる団地の良さを生かしたお部屋になっています。
物件詳細
- 所在地
- 神奈川県横浜市神奈川区片倉1丁目
GoogleMapでみる - 交通
- 横浜市営地下鉄ブルーライン「片倉町」駅 徒歩10分
- 価格
- -
- 管理費
- -
- 修繕積立金
- -
- 面積
- 63.43m²(公簿)
- バルコニー
- 不明
- 構造
- 鉄筋コンクリート造
- 築年数
- 1969年
- 改築年
- 2022年
- 階層
- 5階建て4階部分
- 総戸数
- 30戸
情報登録日:2023/1/13 次回の更新予定日:-
