- 価格
- 成約済
- ローンの目安
- -
- 管理費
- -
- 修繕積立金
- -
今回リノベーションを行ったお部屋は最上階の11階にあり、晴れた日にはスカイツリーを眺めるこができます。建物のエントランス部分はきちんと維持・管理されており、広くてきれいな印象です。
住戸の中に入ると、玄関の土間は、広めにとっているので、出かけるときの不自由さもありません。壁に可動棚を設置しているので、靴の収納には困らなそうです。後から棚板を追加することもできるので、使いやすいように収納をカスタマイズすることができます。
玄関からバルコニーまでをリビングダイニングとして使うことができます。バルコニー側だけではなく、共用廊下側の窓からも明かりが入ってくるので日中、電気をつけなくても暗い印象はありません。玄関側のリビングスペースは、家具を設置したり追加工事(別途費用が掛かります)建具を設置することで個室としてつかっても良いでしょう。
コンパクトな寝室は窓が南西を向いているため、気持ちの良い日差しが入ってきます。全体的に、温熱環境を整えているので、個室の扉がなくても家全体を心地の良い温度に保つことができます。
キッチンは、リビングから少し離れた場所に壁付で設置しているので、集中して調理することができ、匂いや油跳ねも対面キッチンより気になりにくくなります。MUJI×UR団地リノベーションプロジェクトで開発した、「組合せキッチン」を採用しています。
あえて収納を設けていないので、好みに合わせて収納をカスタマイズすることができます。
バルコニーに面した真ん中の空間を少し広めの洗面室としています。マンションでは一般的にはあまりない、洗面室に窓があるので、明るく風通しの良い空間です。洗濯物を洗濯機から取り出して、その場でハンガーなどにかけることができたり、部屋干しスペースに使ってもいいかもしれません。
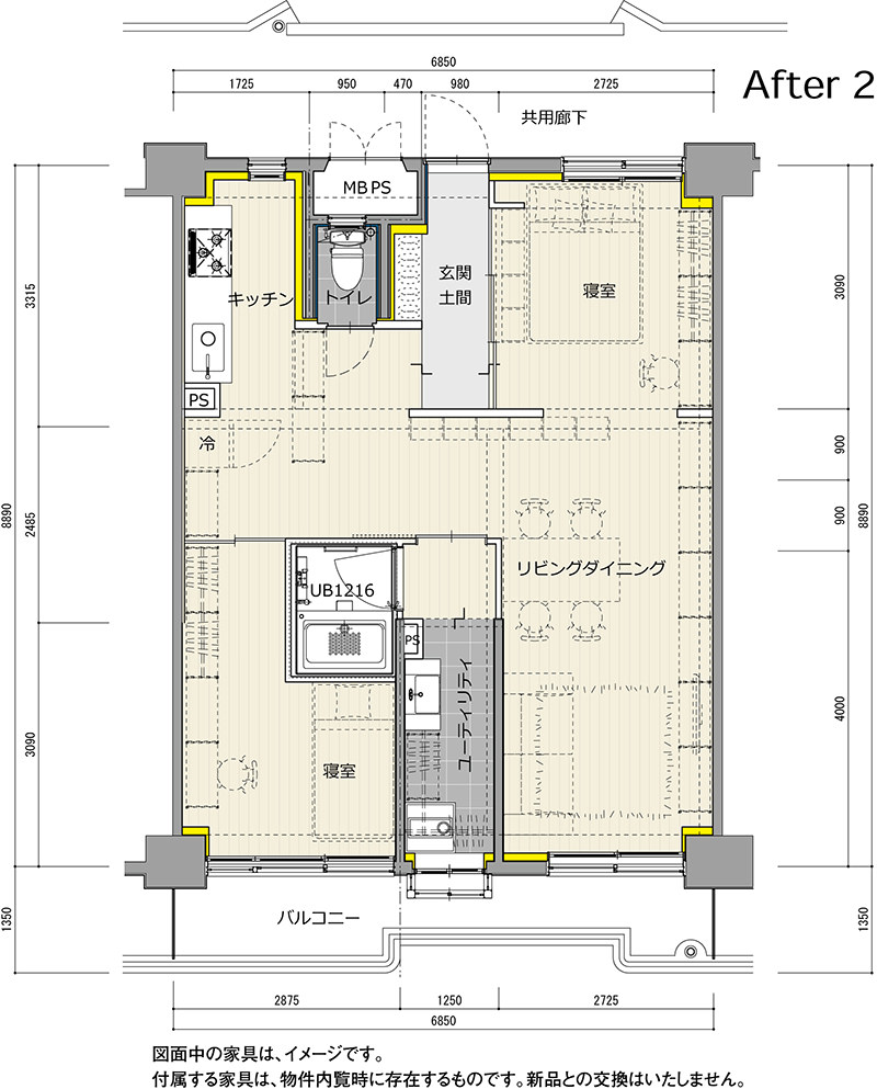
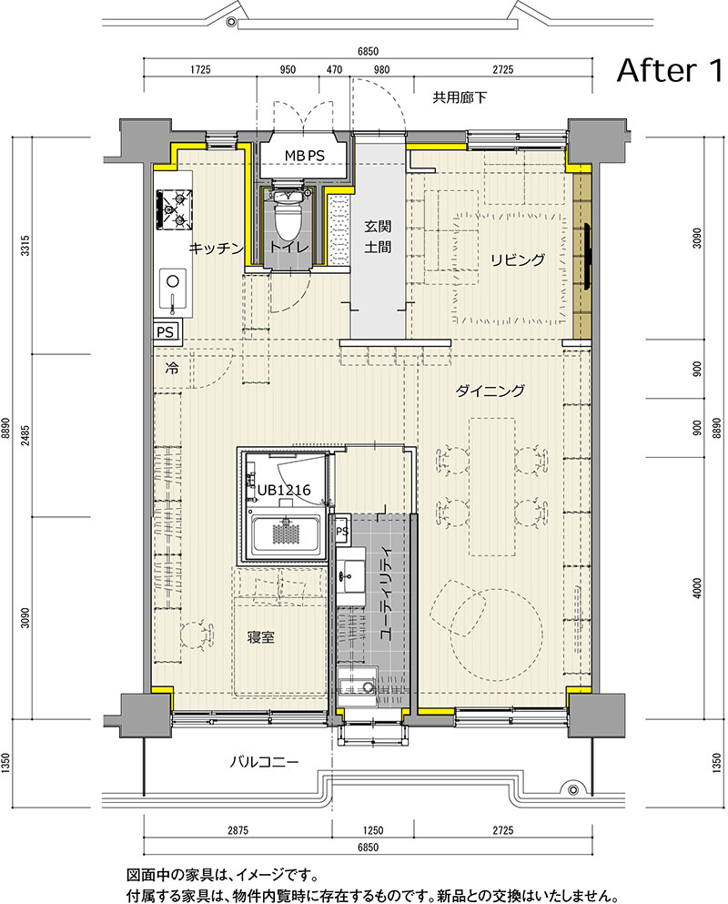
間取り
古い間取りの特徴を生かしつつ、現代の暮らしに合うようにリノベーションしています。外壁面には断熱材を入れ、窓にはインナーサッシを入れることで一般的に暑くて寒くなりがちな最上階の住戸の温熱環境を改善しました。キッチン、ダイニング、リビングはゆるやかにつながり、一体空間として広々使えます。バルコニー側は窓が3か所、共用廊下側は窓が2か所あり、それぞれ開けることでバルコニーから光と風が通り抜け、自然を感じやすくなっています。
玄関は土間を広げているため、ベビーカーを置いたり、アウトドア用品を置くこともできるでしょう。
また、バルコニーに面した真ん中の空間を、洗濯機置場と室内干しスペースを備えたユーティリティスペースとしました。窓もあるので明るく風通しの良い空間となりそうです。玄関土間に引き戸を設置すれば玄関とリビングを分けられ、ダイニングとリビングの間も家具などで仕切れば1LDKから2LDKへと間取りを変化させることができます(間取り変更には、別途費用が掛かります)。
物件詳細
- 所在地
- 千葉県市川市塩浜4丁目
GoogleMapでみる - 交通
-
東京メトロ東西線「南行徳駅」バス6分「行徳高校前」徒歩1分
東京メトロ東西線「南行徳駅」徒歩18分
- 価格
- -
- 管理費
- -
- 修繕積立金
- -
- 面積
- 60.89m²
- バルコニー
- 8.26m²
- 構造
- 鉄筋コンクリート造
- 築年数
- 1985年
- 改築年
- 2019年
- 階層
- 11階建て11階部分
- 総戸数
- 665戸
情報登録日:2021/7/5 次回の更新予定日:-
