- 価格
- 成約済
- ローンの目安
- -
- 管理費
- -
- 修繕積立金
- -
※ローンの目安は、頭金ゼロ、借入期間35年間、都市銀行・変動金利(0.725%・優遇後)を想定しています。審査内容により、融資の一部、または全部をご利用いただけない場合がございます。予めご了承ください
今回のお部屋は、「花見川団地」分譲棟の一室です。
MUJI×UR団地まるごとリノベーションでリノベーション中の商店街があり、スーパーや飲食店、医療施設など様々なテナントが入っています。
一方、地域のコミュニティ形成を目的とした定期的なイベントを開催。
無印良品の出張販売や、地域に住まれる方々を含めたワークショップの開催によって賑わいを創出しています。
永く住みつぐことができ、工事の環境負荷を軽減する、サスティナブルなリノベーションを目指しました。
団地がもつ風通しや陽当たりのよさを生活に取り込み、既存状態を十分に読み解いて、「活かすもの」と「新しくするもの」を見定めます。
- 「活かすもの」
- ・古きよきもの:障子、ガラス
- ・十分機能するもの:鴨居敷居、キッチン-解体ゴミ削減
- ・間取り-工事手間削減
- 「新しくするもの」
- ・仕上げ材:リノリウム、紙クロス、麻畳、ダンボールふすま-自然素材
- ・衛生機器:洗面、浴室、トイレ
住戸の真ん中を貫く構造躯体壁を、杉の板で覆っています。
この杉板は、廃棄される予定だった端材です。一枚一枚は短く、長さも不均一ですが、貼り方を工夫することでロスなく利用しています。
一見すると部屋のジャマ物であるコンクリートの壁。これにひと手間加えることで、壁をより所とした生活が展開されます。
家の中に印象的な「ひとつの軸」が通ることで、空間がのびやかに広がります。
この壁は配管配線の通り道にもなっており、露出していた給水管を隠蔽したり、必要なところにコンセントを移設する役割も担っています。
もともと畳敷だった居室は、MUJI×UR団地リノベーションプロジェクトで開発した「麻畳」に入れ替え、水まわりから続くキッチンの床は「リノリウム」に張り替えています。壁紙には「紙クロス」を採用し、「杉板」の壁と合せて自然素材にこだわった内装仕上げとなっています。
杉板の壁が額縁のような役割で暮らしを絵画のように切り取り、生活を彩ります。
窓越しに見える緑や空とも心地よく調和します。
押入は白い「ダンボールふすま」に入れ替えることで、お部屋全体が明るい印象となります。
壁に厚みをもたせることで、ひとつながりの空間でありながらも居場所がゆるやかに分かれます。既存の鴨居や敷居は洗いをかけて残してあるので、暮らしに合わせてフスマで仕切ることもできます。
付かず離れず、程よい距離感を保つことができる住宅です。
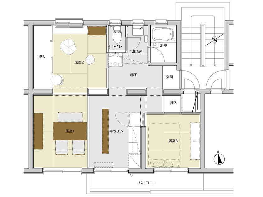
間取り

物件詳細
- 所在地
- 千葉県千葉市花見川区花見川7丁目
GoogleMapでみる - 交通
-
京成本線「八千代台」駅 バス7分
バス停「中央公園」徒歩4分
- 価格
- -
- 管理費
- -
- 修繕積立金
- -
- 面積
- 47.99m²
- バルコニー
- 5.72m²
- 構造
- 鉄筋コンクリート造
- 築年数
- 1968年
- 改築年
- 2022年
- 階層
- 5階建て4階部分
- 総戸数
- 1,530戸
情報登録日:2024/03/01 次回の更新予定日:-

