- 価格
- 成約済
- ローンの目安
- -
- 管理費
- -
- 修繕積立金
- -
今回リノベーションを行ったのは、グリーンタウン安行東2号棟。エレベータのない5階建ての3階のお部屋です。団地ならではのゆとりある住棟配置のため、光と風が気持ちよく抜けていきます。全てを壊すのではなく、使えるものを残しながらリノベーションをしており、古いものを見なおしながら、設備を更新し、暮らしやすくなるように断熱性能を向上しています。
玄関ホールは、広くとっています。リビングとの間に、壁や建具などの遮るものがないので圧迫感がありません。
キッチンは「MUJI×UR団地リノベーションプロジェクト」で開発した組み合わせキッチンと組合せテーブルを採用しております。テーブルは作業台として使ったり、カップボード代わりで使ったりと、使う方に合わせご使用いただけます。
個室は2部屋設けています。もともとあった押入はそのまま収納として生かし、ふすまを段ボールふすまに入れ替えています。
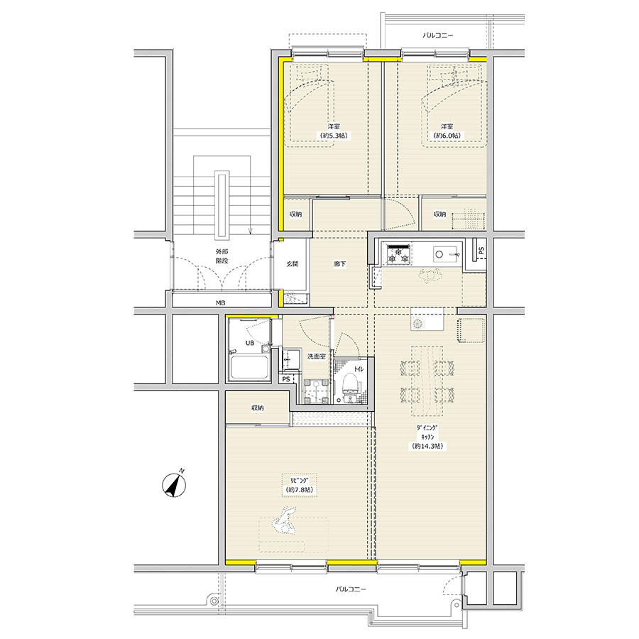
もともとあった和室をリビングに取り込み、LDKはあわせて約22帖とゆとりある空間となっています。既存の鴨居はそのまま残しているので、将来お部屋が必要になった際はふすまをいれたり、家具で仕切ることで、もう一部屋確保することもできます。
間取り
1980年築、約84㎡のお部屋を、いまの暮らし方に合うようにリノベーションしました。個室はそれぞれ十分な広さがあるので、しっかりプライバシーを確保できそうです。北側にも大きな窓があるので、個室も暗い印象はありません。外壁面に断熱材を入れ、窓にはインナーサッシを設けることで、断熱性能を改善しています。築年数は経過していますが、快適にお過ごしいただけるお部屋です。
物件詳細
- 所在地
- 埼玉県川口市大字安行原930番地
GoogleMapでみる - 交通
- 東武スカイツリーライン(伊勢崎線)「草加」駅 バス13分 徒歩2分
- 価格
- -
- 管理費
- -
- 修繕積立金
- -
- 面積
- 84.34m²
- バルコニー
- 10.87m²
- 構造
- 鉄筋コンクリート造
- 築年数
- 1980年
- 改築年
- 2022年
- 階層
- 5階建て3階部分
- 総戸数
- 40戸
情報登録日:2022/8/29 次回の更新予定日:-
