神奈川県横浜市中区 リノベーション住戸

都会に住みたい15,000人の「あったらいいな」をかたちにしたリノベーション住戸が、神奈川県の野毛に完成しました。天気や季節、家族構成などの変化に伴う多様なニーズに応える、カスタマイズ性の高さが特長です。

限られた空間でも豊かに暮らすためのアイディアを、実際の住戸の写真と一緒にご紹介します。

物件概要

場所
神奈川県横浜市中区野毛(京浜東北・根岸線 「桜木町」駅 徒歩4分)
築年数
1985年7月
床面積
52.23㎡
所在階
6階/10階
総戸数
54戸

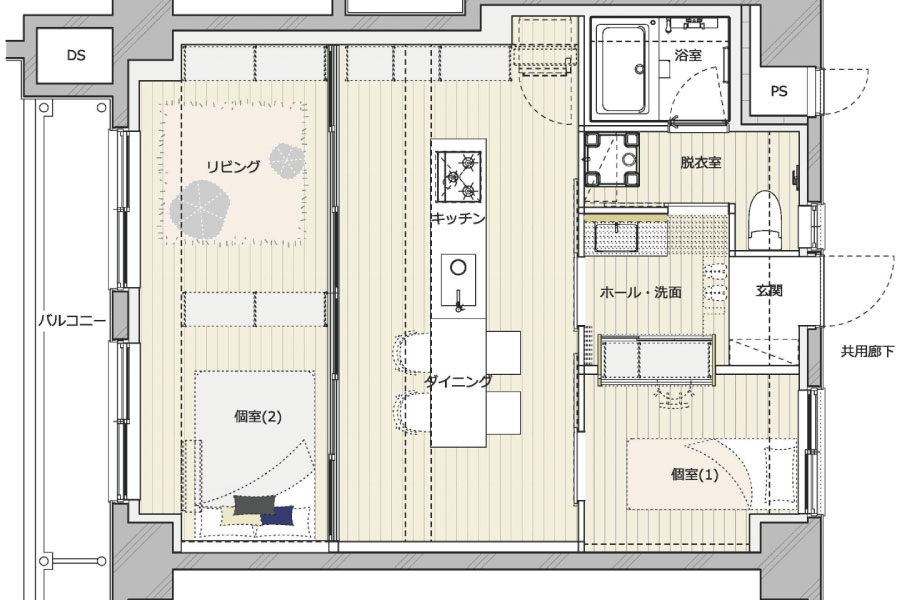
間取り


光を通す引戸を採用し、空間だけでなく風通しもカスタマイズ

引き戸を閉めて空間を仕切ったり、開けて空間を広く使ったりすることができます。また、引き戸の開け閉めによって、風通しの調整が可能に。

【引き戸を閉めた状態】

【引き戸を開けた状態】

間仕切り家具で叶う、可変的な間取りと収納力

無印良品のスチールユニットシェルフを間仕切り家具として活用。シェルフを外して、空間を広く使うこともできます。

【間仕切り家具あり】

【間仕切り家具なし】

廊下に収納力が高い洗面所を設置し、スペースを有効活用

一般的には移動機能だけを担う廊下に洗面台を設置。機能性が足されて、無駄なスペースを減らしました。

さらに、洗面台の上部にハンガー掛けスペースと収納棚を設置することで、限りある空間を有効活用しています。

壁がワークスペースや収納、通り道に

壁面に「木囲い」を挿入。デスクワークや収納として活用できるだけでなく、部屋同士をつなげたり、区切ったりすることができます。

【ワークスペースや収納として活用】

【部屋同士をつなげて広々空間】

玄関の段差下にできた収納スペースですっきり

玄関の段差下に靴を収納できるスペースを確保。散らかりがちな玄関をすっきり整理できます。


モデルルーム見学

モデルルームの見学をご希望の方は、無印良品のリノベーション 横浜ランドマークまでお問い合わせください。長く快適に暮らすための工夫についてご説明するだけでなく、物件探しや資金計画のご相談も承ります。

※リノベーション住戸を検討している方が対象となります

「地方もいいけど、やっぱり都会に住みたいプロジェクト」コラム

2022年11月より開始した「地方もいいけど、やっぱり都会に住みたい」プロジェクトのコラムやアンケート結果をご覧いただけます。