MUJI×UR 団地リノベーションプロジェクト
高島平団地リノベーション完成 ここだけの話 2014

※このレポートは、2014年1月10日に東京エコッツェリアで行われた、パネルディスカッション式のトークイベントを採録しています。

MUJI×UR Plan 06 [Re+006]「千里青山台団地」(大阪府吹田市)/ 47.99m²

豊田
南北につながる3部屋を1つにまとめることで、部屋全体にまんべんなく光と風が通り抜ける空間ができました。ゆるやかに区切られた開放的なリビングとダイニングキッチンでは、ゆったりとした時間が過ごせます。
そして、窓際にはユーティリティであるサンルームを設けました。サンルームの中に洗濯機を置いています。サンルームとキッチンが近いので家事動線が短くなりました。


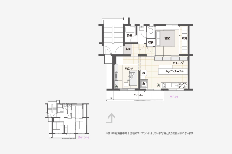
MUJI×UR Plan 07 [Re+007]「東豊中第2団地」(大阪府豊中市)/ 47.54m²

豊田
南側にある3部屋を繋げてLDKとしました。団地の豊かな風景が見れるように、キッチンを窓に向かって設けました。外を見ながら気持ちよく料理と食事ができます。キッチンの高さとデザインを統一したテーブルとスツールは備え付けてありまので、暮らし方に合わせて自由に配置を変えられます。

また、もともと壁に埋まっていたコンセントボックスを生かして露出させてスイッチとしました。

暮らし方によってキッチンとテーブルの組み合わせ方を変えられます。大テーブルとして使うこともできますし、並べれば、下にも収納を入れることができますので、大収納として使うことができます。
水井
高島平団地のプラン説明の前に、まずは高島平団地の紹介をさせていただきます。

高島平団地は、昭和40年代につくられたマンモス団地の中で最も都心に近いという立地条件から、入居応募が殺到したといいます。当時は東洋一のマンモス団地ということで、全体戸数は8,000戸以上あります。
水井
現状の高島平団地の写真ですが、日照やプライバシーを考慮した団地計画にもとづき、緑地や公園を配置したゆとりある景観形成がなされています。
こちらは、団地全体の鳥瞰写真という形になるのですが、こちらでも、緑豊かな環境がうかがえると思います。

このような歴史もある高島平団地のメリットを整理しました。
都営三田線での大手町などの都心部へのアクセスがよく、団地内には松坂屋ストア、東武ストアなどの大型スーパーをはじめ、各種店舗が並ぶショッピングエリアも充実しています。また、団地内には、保育園、幼稚園、小学校、中学校、隣接して、高校まであります。また、潤いもいっぱいで、とくに団地内を通るケヤキ並木は、道行く人もその光景を見上げるほど見事な眺めです。コミュニティについては、自治会や、大学連携などのコミュニティ活動が育まれています。
豊田
それでは高島平団地で実施した2プランについて説明します。


MUJI×UR Plan 08 [Re+008]「高島平団地」(東京都板橋区)/ 46.24m²

豊田
間取りを自由に変えられるプランです。ふすまの仕切り方次第で、広々としたLDKにすることも、書斎のある大きな寝室にすることもできます。このプランの洗濯機の位置は2種類あり、洗面所の場合とキッチンの背面の場合があります。

一室空間

寝室と大きなLDK

大きな寝室とLDK

豊田
写真は、ダイニングです。左側が「麻畳」。右側は「麦わらパネル」と床材をわけています。そして左側の壁一面に無印良品の家具が置けるようになっています。もともとは2つに分かれていた空間を一つにすることで、2つの窓がつながり、かなり明るい空間になりました。

また、ふすまの位置を変えることができます。このふすまは軽量な強化ダンボールなので、移動が簡単です。「ダンボールふすま」を取り外して一室空間とし、のびのびとした空間になります。

お風呂のタイルは通常塗装ができないのですが、既存のタイルの上から特殊な塗装をしました。古く、少しかけている部分もそのまま塗装することで、味わいを残すことができたかなと考えております。



MUJI×UR Plan 09 [Re+009]「高島平団地」(東京都板橋区)/ 46.24m²

豊田
もとのプランは先ほどのプランと一緒です。キッチンを壁付けから対面に変え、窓際には室内干しができるユーティリティを設けました。キッチンとランドリーの距離が縮まり、天気の心配もなく洗濯物が干せるので、効率良く家事が行えます。
豊田
これは、WEBサイトを通じて行った住まいのかたちアンケート第2期第6回 「理想の住まい方について」です。毎回多くの方にご回答をいただいております。ここでは2,500を超える方々から回答をいただきましたが、そのなかで天気を気にせずに洗濯物を室内に干せるサンルームのある暮らしを提案したところ約7割の方から共感をいただきました。大きな反響をいただいたので、これを今回のリノベーションに生かして、サンルームのある暮らしを取り入れました。
豊田
サンルームです。洗濯機があり、上には室内干しができるように設えています。 右側は壁になっていますが、キッチンが隣にあります。窓から光が入るので室内干しに適しています。小窓をあければ換気もでき湿気の調整もできます。
豊田
リビングです。鴨居や柱をアクセントとして残しています。リビング横の押し入れだった部分は、書斎コーナーとして利用できます。柱や鴨居といったアクセントと色を合わせた家具は相性がよさそうです。
豊田
キッチンの右側がサンルームですが、壁が目隠しとなって、洗濯物を隠します。
豊田
独立した部屋はそのまま残して寝室としました。落ち着いて寝ることができそうです。