MUJI×UR 団地リノベーションプロジェクト
トークイベント「団地リノベーションはどこまで可能か」
※このレポートは、2012年9月8日に無印良品 難波で行われた、パネルディスカッション式のトークイベントを採録しています。
- 土谷
- そこでいくつかのテーマにそってディスカッションをしていきたいと思います。
いよいよ「リノベーションはどこまで可能か」ということについて、これらのテーマは既にコラム「団地再生物語」でも書いていて、多くの方から反応をいただいています。またお帰りになった後でもお読みいただければと思います。
[1] ふたつの部屋を借りて住む
「仕事部屋と住まい、ふたつの部屋を借りて住む」、SOHOをイメージした「仕事部屋と住まい」の組み合わせの提案について。
- 土谷
- こういうのはどうでしょうか。例えば、ふたつの場所を隣り合わせで借りてしまう。ふたつのうち、ひとつを仕事部屋にするというアイデアです。想定は、4階建てのエレベーターなし。階段室をはさんで左右ふたつの住戸です。最上階で、鍵が別々の部屋をふたつ借りきるスタイルです。
ということでURの小正さんに質問です。今はURの賃貸物件で、仕事場として使うということはできるのでしたでしょうか? - 小正
- そうですね、仕事部屋として貸しているという例はないのですが、南船場団地とか、在宅ワークができるようなフリールームが用意されていて、玄関がふたつあるような住宅もあるのですが、ごく一部です。従業員のいる会社としての賃貸は、今は難しいですね。
- 馬場
- ふたつ部屋を借りるということで言うと、上の階は若いファミリーで、下の階は両親。自分たち家族だけでなく、両親と一緒にふたつ借りる、という借り方はあるでしょうね。
- 小正
- そういった、家族間で近くに住みたいと考えている方のために、高齢者の方の申し込み期間を優遇している物件もあったりします。今のところ割引まではできていないのですが、高齢者に向いているなという7つの団地では、高齢者の方しか申し込みができない期間を設けていることもあります。
また、ふたつ借りて住むという暮らし方ですが、実はふたつの家でありながらも、バルコニーがつながっているという物件もあります。当然玄関はふたつありますが、ひとつは寝室。もうひとつは壁をぶち抜いてしまって趣味で使えるようなフリールームにするとか、そんな使い方ができる部屋もごく一部であったりします。 - 土谷
- 比較的新しい建物ではそういう間取りもあると。
- 小正
- いえ、今申し上げたのは古い物件で、ちょうどそうしたリノベーションをした例があるんです。
オフィスとしてはお貸しできないですが、在宅で仕事をされる方はすべての方に従業員がいるわけではないでしょうから、仕事部屋として使う事はもちろんできますよね。 - 土谷
- ふたつ借りて暮らすこと自体は?
- 小正
- はい、それはセカンドハウスのように、例えば東京のUR賃貸に住んでいて、大阪出張が多いから大阪のUR賃貸も借りるなど、そうしたことも可能です。
- 土谷
- なるほど。仕事部屋として借りることについて、可能性はありそうですね。そしてふたつの部屋をもつメリットは、ふたつあれば、それぞれの住み方を明快に、かつ、格好良く決めることができるんです。
- 馬場
- バーンと抜いて空間を広く使えば、いろいろな使い方ができますよね。
- 土谷
- 先ほどの、親子で住むということも、今は多くの人が一緒に暮らすといろいろと大変なこともあるでしょうから(笑)、同じ敷地の別の部屋に暮らすという、ちょうどいい距離感をつくることがUR賃貸だったらできるということですよね。
- 小正
- 扉は隔てていても、近いですから、何かと安心感もありますしね。間取りが小さいからこそ、組み合わせて活用してもらえるといいですね。
[2] 団地の一階でお店を開く
「団地の一階でお店を開く」、1階のふたつの部屋を借りて、ひとつは「住居」もうひとつは「お店」として使うという提案について。
- 土谷
- それから次の課題、これはちょっと過激ですけど、団地の一階でお店を開くです。広い敷地にきれいな緑がありますから、1階にカフェがあったらいいですよね。カフェを自分で運営したいという人もいるのでは? ということで、ひとつを自宅に、ひとつをカフェにというわけです。こんなアイデアはどうでしょう?
- 小正
- 個人的にはカフェも好きですし、こういう古い物件だからこそ階段を降りたら人が集まれる場所があるというのはとてもいいと思うのですが、固い話なんですが、住宅を施設に転用するというのは残念ながら、今のところ実現性でいうとかなり厳しいです。
- 馬場
- それでは代案ですが、ゆったりとした敷地に、例えばキオスクのようなカフェスタンドがある、というのはいかがですか? 10m²くらいの広さがあればできてしまいますよね。それを、住んでいる人が運営していいというルールにするとか。
- 小正
- 少しそれとは違うかもしれませんが、どんな団地にも集会所があるのですが、実はあまり使われていないんです。使われていないけど、使い勝手はすごくいい。子育てサークルやお茶会など、うまく使われているのは古い団地が多くて、新しい団地では30m²ほどの広さにアイランドキッチンがあって、子どもを遊ばせながらちょっとした料理教室もできそうなのに、あまり使われていない。その集会所をうまく活用することを考えていくと、面白いかもしれません。広い敷地のなかに、みんなが参加できるお店として、集会所という空間がある、というイメージですね。
- 馬場
- 本当は、住宅のなかにベーカリーや花屋さんがあるといいですよね。
- 土谷
- 住宅地域、商業地域…といった区分に分けてしまっていますが、本当は暮らしというのは、住居のなかに店舗もあればオフィスもあっていいのでは? そんな考え方もありますね。団地のような、これだけの空間があるなら検討したいですよね。
[3] 団地の部屋をシェアして住む
「団地の部屋をシェアして住む」、広さはあるが、間取りとしてはちょっと使いにくい部屋を、3人で住む「シェアハウス」にしてしまうという提案について。
- 土谷
- さて、これはまた別で、広さはあるものの、間取りとしてはちょっと使いにくい家というのは、結構あるんですね。例えばこうして、3人で住むシェアハウスにしてしまう。そうすると、仮に家賃が9万円だとしても、ひとり3万円で住むシェアハウスなら割安な感じがします。どうでしょう?
- 小正
- はい、実はUR賃貸には、シェアハウスとして使えるような、シェアの制度が既にあるんです。あまりPRができていないのですが、シェアハウスができる民間業者は少ないんです。
- 馬場
- 東京だと家賃が高かったり、ひとりで暮らすのは寂しいということもあります。プライバシーは守りつつも一緒にテレビを見たりする空間があるというのは、若い世代の方のライフスタイルにも合っているように思います。団地の課題として若い世代の方が少ないということが挙げられると思いますが、シェアハウスというのがひとつの解決策になるかもしれません。改修費はそんなにかかりませんしね。
- 土谷
- それから、小さな家に暮らす工夫をもっと考えてみるという方法もありそうです。キッチンもそんなに大きくなくていいのではないか、とか。
- 馬場
- キッチンにつながる大きなダイニングテーブル、というのを過去につくったことがあるのですが、とても人気でした。キッチンは狭くても使い勝手がいいとか、食事をするところはとても広いとか、やりようがありますよね。
[4] 小さなキッチンく
「小さなキッチン」、限られたスペースを想定した、小さなキッチンのいくつかの提案について。
- 土谷
- 小さいということは、暮らしを考えるのにいい条件なんです。広いといろんなことができると思われがちですが、これだけ小さいと、何かを優先することを考えないといけない。その時に、自分は何を優先したいのか?を考えてみることは、自分自身の暮らしを見つめるきっかけになります。どうでしょう、住宅設備を選べるUR賃貸とか。
- 小正
- 確かに、今は色んな暮らし方があるので、キッチンが妙に大きかったり、妙に小さかったりするかもしれません。住宅設備を選べるようになると、家賃に変動がありそうですが、面白いですね。人によって重視するポイントは異なりますし。今すぐにできなくても、将来の賃貸というものを考えるときに、カスタマイズというのはひとつの大きなポイントになりそうです。
- 馬場
- 住宅設備だと考えていたものを、家具と考えてみると面白いですね。洗面ボウルだって置くだけですから。
- 土谷
- キッチンも家具と考えてみるとか。カスタマイズしやすい間取りになっていて、家具をしつらえるように自分で好きなものを置ける、という物件があるといいですね。
- 馬場
- スケルトンで用意してくれて、自分で好きなようにしていいとか。スケルトン団地みたいな考え方です。R不動産を見ていると結構ありますよ。
- 土谷
- いいですね。どうでしょうか。今みたいな話をずっとしながら、「団地リノベーションプロジェクト」は進んでいます。ここで少し、現段階でのプロジェクトについてご紹介しましょう。
- 馬場
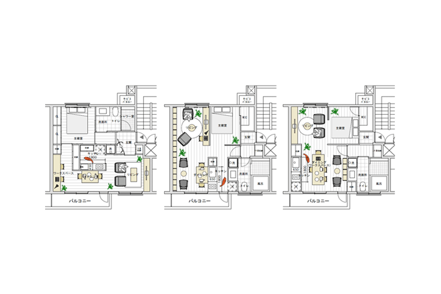
- 団地はどうしても、ひと部屋が小さいですよね。その部屋をひとつ繋げただけで、ちょうどいい広さに変わるというのが、「団地リノベーションプロジェクト」を通して分かった点です。さらに、無印良品の家具がぴたっとはまる、家具が壁のようになるといいですね。ぜひ一緒に考えていきたいのが、無印良品の家具をぴたっとはめることができる、ちょっとした金具。UR賃貸ではそれができる物件が多そうで、たくさんの物件で応用できそうな気がします。
- 土谷
- 商品自体の開発もしたいのですが、建築とつなぐところ、さっきも話が出た、壁一面の収納をつけ時のフックや小さな壁のようなものが、意外と必要なのかもしれませんね。