新旧が交じり合う街
千里ニュータウンと新千里西町団地
千里ニュータウンといえば、日本初の大規模ニュータウンとして日本一有名なベッドタウンといっても過言ではないでしょう。
御堂筋線の終着駅である「千里中央」の駅の名で知っている人も多いはず。愛称「せんちゅう」です。
豊中市と吹田市にまたがる1,160haの敷地に約37,000戸、15万人の居住エリアが開発されました。
その中でも、千里中央駅の周辺はヤマダ電機や阪急百貨店、大型ショッピングモールなど、さまざまな商業施設やオフィスビルなどが充実している、千里ニュータウンの中心部です。
入居開始から50年を迎えた今も、駅前はまだまだ開発が続いていますが、じっくり街をみてみると、阪急百貨店や千里中央駅の地下の商店街など、ところどころ昭和の面影を感じます。
入居開始から50年を迎えた今も、駅前はまだまだ開発が続いていますが、じっくり街をみてみると、阪急百貨店や千里中央駅の地下の商店街など、ところどころ昭和の面影を感じます。
50年という時間が堆積した街
千里ニュータウンの成り立ちには、日本の高度経済成長が大きく影響しています。都市部に溢れかえる就労者のための住宅をなんとかしようと、大阪府がニュータウン開発を決定したのが昭和33年。東京タワーが完成した年です。これから日本経済が大きく発展していく活気のある時代でした。
昭和36年にはエリア初の団地である「佐竹台団地」が、昭和39年には「津雲台団地」が、そして昭和41年に「新千里北町団地」、その翌年に「新千里西町団地」が続々とでき、新しい住民が住み始めました。そして日本のみならず、千里エリアが世界中の注目を集めた昭和45年の大阪万博です。
その成り立ちを振り返ると、千里ニュータウンは日本の経済を支えてきた、憧れの街だったのです。
年を追うごとに次々と変化する街並み。当時は上の写真のように植樹がされたばかりで殺風景でした。50年の時を経て、街路樹はのびのびと育ち、街一面心地のよい緑で覆われています。
今、千里ニュータウンを歩けば、森の中を散策しているかのように、街中が木漏れ日で溢れています。なんとニュータウンの21%を緑地が占めており、日本のニュータウンの中でも類を見ない緑地率だそうです。
これこそ、何にも換え難い環境の価値。時間の堆積があるからこそ、豊かな生活環境がここにはあるのです。


意外に、ビジネスマンには穴場の住処?
電車の終着駅というとなんだか遠いイメージがありますが、実は交通の面ではかなりの穴場です。
千里中央駅からは、梅田や心斎橋、なんばへの都市部へは電車一本で30分圏内、新幹線の駅でもある新大阪へも電車で15分。
意外に見過ごされがちなのが、空の便。伊丹空港へもモノレールで15分と、大阪市内のみならず、日本全国どこへでもアクセスしやすい立地。
出張の多い働き盛りのビジネスマンには嬉しい立地です。
車での移動も◎。大阪モノレールと並走する中国自動車道の下は、千里ニュータウンを東西に横断する幹線道路。南北へは新御堂筋が貫き、幹線道路以外の道も十分に広い道路が縦横に走っており、車での移動もしやすいのです。 大阪近郊でもここまで交通利便性のよい立地は他にないかもしれません。
昔ながらの雰囲気を残す団地
高層マンション、分譲マンションに囲まれながらも、昭和の雰囲気を残すのが、駅から北へ歩いて10分くらいの距離にある「新千里北町団地」、そして今回のMUJI×URのリノベーションの舞台である「新千里西町団地」です。
千里中央駅からまっすぐ北に坂を登り真正面に構えるのが「新千里北町団地」。その西側に建つのが「新千里西町団地」です。まるで双子のような団地で、建物も敷地内の構成もよく似ています。
住棟は階段室型と呼ばれる階段単位で、2戸1対になった5階建ての住棟がほとんど。階段室型の一部は、ベランダの先に和室1室を設けた増築棟がくっついている特殊な住棟もあります。


「新千里西町団地」には、ポイントハウスと呼ばれる1フロアに三面開口の住戸が2戸しかないボックス型のかわいらしい住棟もあります。
どちらも昔ながらの団地のフォーマットで、採光面が多く、風もよく抜けます。のどかで土地の起伏に合わせてなだらかな丘に建つ団地は、駅前の賑やかさから想像できない、牧歌的な風景をつくり出しています。
コミュニティを生み出すしかけ
団地内には必ずといっていいほど「集会所」という施設があります。
団地に住んだことがない人にはなかなか馴染みのない施設かもしれませんが、まちの公民館みたいなもので、団地に住む住民が会合やイベント、教室などの習い事に自由に使える共用の施設です。
「新千里北町団地」「新千里西町団地」どちらの団地も集会所は敷地の中心部に建つ平屋建てで、多目的に使える部屋と和室のセットになっていて、集会所のまわりはちょっとした広場になっています。


たとえばどんな使い方をされているの?というと、「新千里北町団地」では、千里ニュータウンまちびらき50周年祭と連動して、団地の自治会とURが共同して、集会所前を使った野菜の直売やヨーヨー釣り、集会所内ではオリジナル表札づくりのワークショップなどを開催し、お子様づれの家族や高齢者で賑わいました。この団地ならではの外部に近い空間の利点を活かして、集会所の中と外の活動をうまくつないで使われています。
たとえば習い事や会合だけではない、団地住民が楽しめるイベントやわいわいと人が集まるしくみを、集会所を中心に団地内に広げていく。そうした新しい集会所の使い方も、MUJI×UR団地リノベーションプロジェクトでは提案をしてみたいと思っています。
団地内には他にもちょっとした公園があちらこちらに点在しています。
ブランコ、砂場、動物のかたちの遊具、鉄棒など、車の心配もなく緑に囲まれた安全な遊び場。子どもたちが自由に走り回り、その様子を木陰で見ながら、親同士が話す風景が目に浮かびます。
新千里西町団地には共同花壇もあります。1畳程度の花壇に区切られていて 、ちょっとしたガーデニングを楽しめそうです。
住みながら住民同士がつながるしかけが団地内のそこかしこに散りばめられているのです。


※取材日(2012年10月)時点の情報になります
リノベーション住戸について
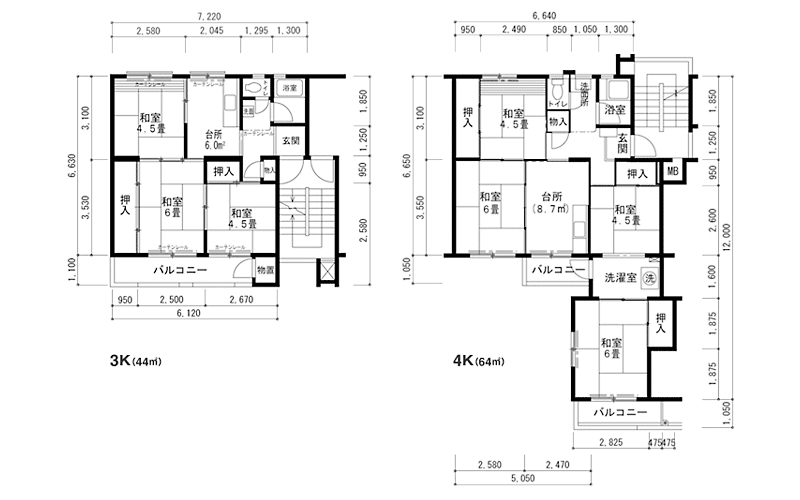
そんな新しい街と昭和のよさが混在する千里ニュータウン。 MUJI×UR団地リノベーションプロジェクトでは、「新千里西町団地」にある2つの間取りをリノベーションします。 ひとつは3Kの44m²のプラン、もうひとつは南面のバルコニーの先にボックス型の増築棟がくっついた4Kの64m²のプランです。


3Kのタイプは、昭和30年代の古い間取りのため、当時は普及していなかった洗濯機や冷蔵庫の置き場に困る間取り。4kのタイプはベランダを改造して南側に和室がひとつくっついていて、その廊下部分には洗濯機置場があり、面積は広いのですが、畳の部屋が多く、間取り的に はちょっと使いづらい。
でもちょっと考えてみてください。44m²、64m²という面積は、夫婦二人暮らし、子どもと家族暮らしにはちょうどよいサイズではないでしょうか?さらに4Kの方は、若者のシェアハウスにも良さそうな間取りです。
50年の歴史を現代にどう解釈するか?長い時間を経て変化した家族や住まいの形態や価値観を、「新千里西町団地」のリノベーションでは考えてみたいと思います。


