無印良品の家 岡崎店
愛知県岡崎市竜美中2丁目2-18
Tel: 0564-55-4100
mail: muji-o@infillplus.co.jp
営業時間: 10:00~18:00(定休日:火曜日・水曜日)
※モデルハウスはご予約がなくてもご来場いただけます
お知らせ
イベント情報
該当するイベントはありません。
もっと見る
岡崎店のモデルハウス
木の家

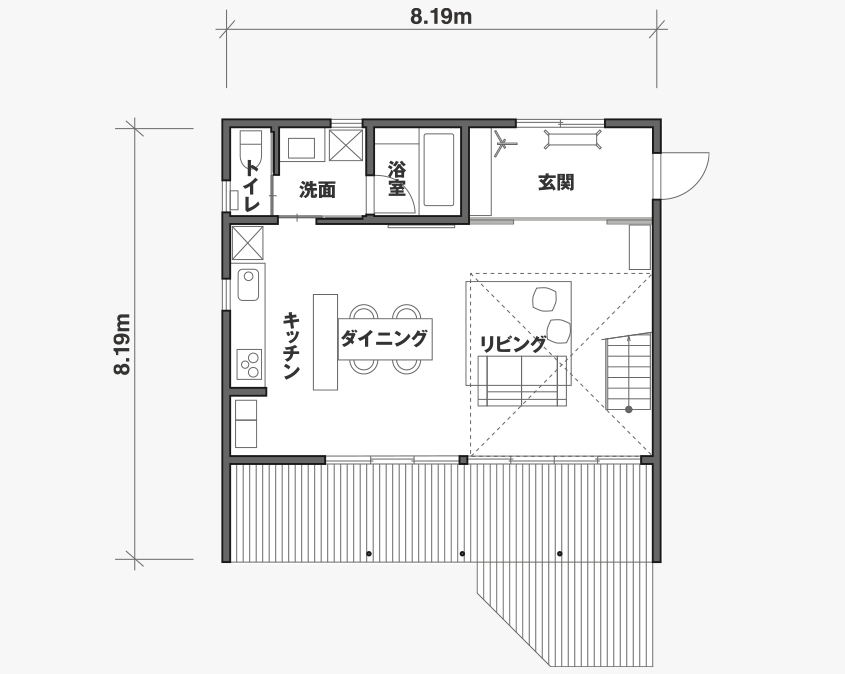
1階1階床面積 52.17m²(15.78坪)

2階2階床面積 41.40m²(12.52坪)
本モデルハウスの標準仕様
- 木の家
- 間口4間半×奥行4間半
(8.19m×8.19m)
- 本体工事価格
- 2,703万円
- 1階床面積
- 52.17m²(15.78坪)
- 2階床面積
- 41.40m²(12.52坪)
- 延床面積
- 93.57m²(28.30坪)
- 建築面積
- 67.07m²(20.28坪)
- 工事面積
- 127.52m²(38.57坪)
- 外皮平均熱貫流率
(UA値) - 0.43W/m²K
- 冷房期の平均日射熱
取得率(ηAC値) - 1.6
- 暖房期の平均日射熱
取得率(ηAH値) - 2.2
- 相当隙間面積(C値)
- 0.4cm²/m²
本体工事価格に含まれる標準仕様
- 外壁
- 金属系サイディング
- 屋根
- ガルバリウム鋼板
- 構造
- 木造軸組工法(SE構法)
- 基礎
- コンクリートベタ基礎
- 断熱
- ダブル断熱工法(外張り断熱+充填断熱)
- バルコニー
- 鉄製(溶融亜鉛メッキ)
- サッシ
- アルミ樹脂複合サッシ
- ガラス
- トリプルガラス
- 玄関
- アルミ玄関ドア
- 玄関・テラス土間
- モルタル金ゴテ仕上げ
- 内装仕上げ
- 真壁・AEP塗装仕上げ
- 床材
- 天然木突き板化粧フローリング
- 階段
- 鉄骨階段
- 室内扉
- オリジナル室内扉
- キッチン
- 人工大理石オリジナル壁付キッチン・ガスヒーター
- ユニットバス
- オリジナル1坪タイプ・高断熱浴槽・ほっカラリ床・エアインシャワー
- 洗面化粧台
- オリジナル洗面化粧台
- トイレ
- 手洗い付き温水洗浄便座
- 照明器具
- 玄関灯・LEDダウンライト・ライティングダクト
- インターホン
- テレビドアホン
- 換気システム
- 第3種換気(ダクトレス)
- 給湯器
- ガス(高効率給湯器)
※外構・屋外付帯工事・家具は価格に含まれておりません。
※工事面積は吹抜・テラス・バルコニーの各面積を含みます。
※価格は千円以下を切り捨てて表示しています。
※オプション仕様および価格は各モデルハウスにてお問い合わせください。
モデルハウススタッフより

こんにちは。無印良品の家 岡崎店です。明るく、快適に、永く住まう。そんな暮らしのシンプルな希望にしっかり応える「木の家」。無印良品の家 岡崎店は、「木の家」をご覧いただけます。この居心地の良さをモデルハウスでぜひ体感してみてください。私たちがお客様それぞれのご要望に合わせた”暮らしのかたち”をご提案させていただきます。皆様のご来場を心よりお待ち致しております。
岡崎店が手がけた施工例
該当する記事はありません。
もっと見る
















