無印良品の家 京都南店
京都府久世郡久御山町栄1-1-44
Tel: 0774-43-9003
mail: muji@nohara-k.com
営業時間: 10:00~18:00(定休日:水曜日)
お知らせ
イベント情報
該当するイベントはありません。
もっと見る
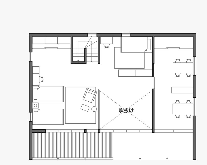
京都南店のモデルハウス
木の家

1階1階床面積 69.56m²(21.04坪)

2階2階床面積 59.62m²(18.03坪)
本モデルハウスの標準仕様
- 木の家
- 間口6間×奥行4間半
(10.92m×8.19m)
- 本体工事価格
- 3,514万円
- 1階床面積
- 69.56m²(21.04坪)
- 2階床面積
- 59.62m²(18.03坪)
- 延床面積
- 129.18m²(39.07坪)
- 建築面積
- 89.43m²(27.05坪)
- 工事面積
- 165.61m²(50.09坪)
- 外皮平均熱貫流率
(UA値) - 0.45W/m²K
- 冷房期の平均日射熱
取得率(ηAC値) - 1.7
- 暖房期の平均日射熱
取得率(ηAH値) - 2.2
- 相当隙間面積(C値)
- - cm²/m²
本体工事価格に含まれる標準仕様
- 外壁
- 金属系サイディング
- 屋根
- ガルバリウム鋼板
- 構造
- 木造軸組工法(SE構法)
- 基礎
- コンクリートベタ基礎
- 断熱
- ダブル断熱工法(外張り断熱+充填断熱)
- バルコニー
- 鉄製(溶融亜鉛メッキ)
- サッシ
- アルミ樹脂複合サッシ
- ガラス
- トリプルガラス
- 玄関
- アルミ玄関ドア
- 玄関・テラス土間
- モルタル金ゴテ仕上げ
- 内装仕上げ
- 真壁・AEP塗装仕上げ
- 床材
- 天然木突き板化粧フローリング
- 階段
- 木製廻り階段
- 室内扉
- オリジナル室内扉
- キッチン
- ステンレス製オリジナル壁付キッチン・IHクッキングヒーター
- ユニットバス
- オリジナル1坪タイプ・高断熱浴槽・ほっカラリ床・エアインシャワー
- 洗面化粧台
- オリジナル洗面化粧台
- トイレ
- 手洗い付き温水洗浄便座
- 照明器具
- 玄関灯・LEDダウンライト・ライティングダクト
- インターホン
- テレビドアホン
- 換気システム
- 第3種換気(ダクトレス)
- 給湯器
- ガス(高効率給湯器)
※外構・屋外付帯工事・家具は価格に含まれておりません。
※工事面積は吹抜・テラス・バルコニーの各面積を含みます。
※価格は千円以下を切り捨てて表示しています。
※オプション仕様および価格は各モデルハウスにてお問い合わせください。
「木の家」モデルハウスのご案内
無印良品の家 京都南店「木の家」モデルハウスは、閑静な住宅街の中に建てられており、実際の町並みに溶け込んだ“実寸大”の木の家です。
“夫婦+子供1人”の暮らしを想定しており、玄関を入ると、1階には一室空間のリビングダイニングが広がっています。柱や梁をあらわしにし、メイプル材のフローリングで仕上げられた素材感溢れる住空間は、無印良品らしい、やさしさを演出しています。
モデルハウススタッフより

京都南店はシンプルで快適な空間と、ステキな家具たちに囲まれて、毎日ワクワク感一杯でスタッフ一同頑張っています。土地探しでお悩みの方にもご対応できるるようスタンバイしております。
ぜひ一度、いや何度でもお気軽にお立ち寄り下さい。初めての家づくりについてのご相談から専門的なご相談まで、明るく元気なスタッフが、心からのおもてなしでお待ちいたしております。
ぜひ一度、いや何度でもお気軽にお立ち寄り下さい。初めての家づくりについてのご相談から専門的なご相談まで、明るく元気なスタッフが、心からのおもてなしでお待ちいたしております。
モデルハウスルームツアー
モデルハウスをスタッフが動画にてご案内しております。
京都南店が手がけた施工例
該当する記事はありません。
もっと見る









